117 Spring Road, Georgina, Ontario L4P 2K4

Listed for:
$2,340,000
0 beds
0 baths
Listed 36 days ago
117 Spring Road, Georgina, Ontario L4P 2K4

View all 6 photos

About

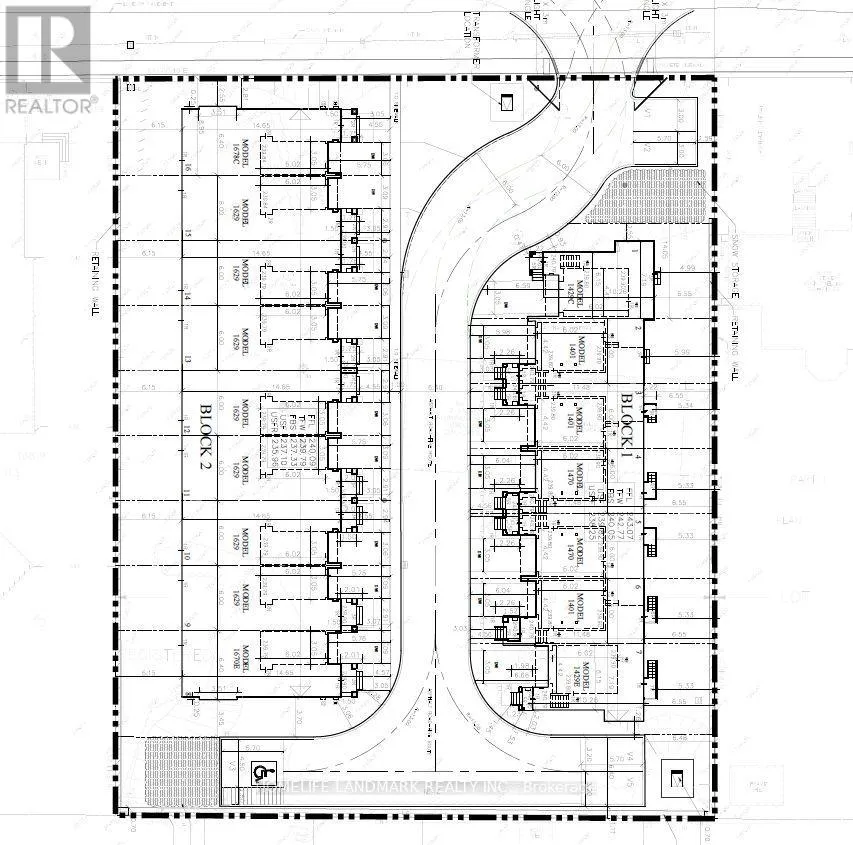
Cross Streets: The Queensway S and Spring Rd. ** Directions: Municipal Road. Attention Builders and Developers! Rare Opportunity! Approved for 16 Freehold Townhouses! Traditional Architectural Design with Private Backyards. Walkout Models Available. 1.0-Acre Located within Existing Residential Community. Draft Plan Approved. Service Allocation Reserved. Close to All Amenities. (id:27476)

Property Highlights

MLS® Number
N12796222
Type
Vacant Land
Community Name
Keswick North
Land Size
40655 ac

Building

Square Footage
1 ac
Fireplace Present
No
Basement Type
Basement Features
Building Heating Type
Heating Fuel
Building Cooling Type

Utilities

Water
Municipal water

Location

Learn more about this property
Listing provided by:
HOMELIFE LANDMARK REALTY INC.
MLS® number:
N12796222
Agent:
Albert Zhuge
*Indicates required field
Name is required
Email is required
Please enter a valid phone number (e.g., 416-111-1111).