5659 Black River Road, Georgina, Ontario L0E 1R0

Listed for:
$1,150,000
4 beds
3 baths
Listed 1 day ago
House for rent: 5659 Black River Road, Georgina, Ontario L0E 1R0

View all 4 photos

About

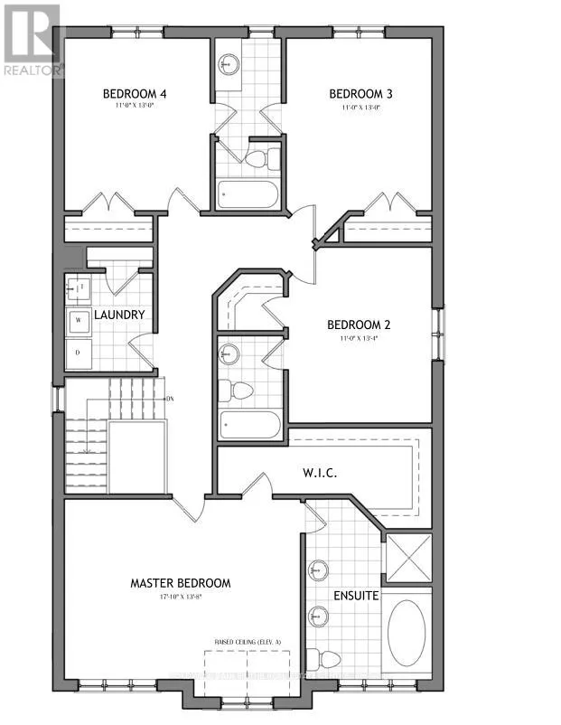
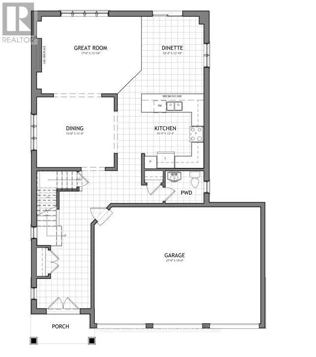
Cross Streets: Black River and Scotia. ** Directions: first property West of Scotia on Black River. Welcome to Lot 1 at The Fairgrounds - a stunning brand-new 2,670 sq ft detached home crafted by Twelve Stone Group in the heart of Sutton, Georgina. Situated on a south-facing lot in this sought-after new community, this 4-bedroom, 3.5-bathroom home delivers exceptional space, quality finishes, and thoughtful design throughout. The open-concept main floor showcases soaring 9-foot ceilings, a grand great room with gas fireplace, a formal dining room, a chef's kitchen, and a dedicated breakfast area - all bathed in natural light. A beautiful oak staircase leads to the second floor where the expansive primary suite boasts a private ensuite, joined by three additional bedrooms, a full 4-piece bath, and convenient second-floor laundry. The home also features a separate walk-down entrance to the basement - outstanding potential for an in-law suite or future income. Premium exterior finishes include clay brick, asphalt shingle roof, poured concrete foundation, covered front porch, and paved driveway. Forced air natural gas heating with HRV, rough-in for central air, municipal water and sewer. Minutes to Lake Simcoe, Sutton's charming main street, schools, and Hwy 404. Development charges included in purchase price. This purchase meets the general qualifications for HST rebates (subject to purchaser assignment and qualifications). (id:27476)

Property Highlights

MLS® Number
N13051878
Type
Single Family
Community Name
Sutton & Jackson's Point
Ownership Type
Freehold
Land Size
24.9 x 36.1 M
Parking Space Total
6

Building

Building Type
House
Storeys
2.00
Square Footage
2500 - 3000 sqft
Bathrooms Total
3
Bedrooms Above Ground
4
Bedrooms Total
4
Amenities
Fireplace(s)
Exterior Finish
Brick
Fireplace Present
Yes
Basement Type
N/A (Unfinished)
Basement Features
Building Heating Type
Forced air
Heating Fuel
Natural gas
Building Cooling Type
None

Utilities

Water
Municipal water
Utility Sewer
Sanitary sewer

Room Layout

Primary Bedroom
Second level
5.44 m x 4.17 m
Bedroom 2
Second level
3.35 m x 4.06 m
Bedroom 3
Second level
3.35 m x 3.96 m
Bedroom 4
Second level
3.35 m x 3.96 m
Great room
Main level
5.33 m x 3.91 m
Dining room
Main level
3.96 m x 3.56 m
Kitchen
Main level
3.15 m x 3.76 m
Eating area
Main level
3.15 m x 3.91 m

Location

Learn more about this property
Listing provided by:
COLDWELL BANKER THE REAL ESTATE CENTRE
MLS® number:
N13051878
Agent:
Jonathan Glen Meyer
*Indicates required field
Name is required
Email is required
Please enter a valid phone number (e.g., 416-111-1111).