0 Palace Road, Greater Napanee, Ontario K7R 1A7

Listed for:
$255,000
0 beds
0 baths
Listed 3 days ago
0 Palace Road, Greater Napanee, Ontario K7R 1A7

View all 26 photos

About

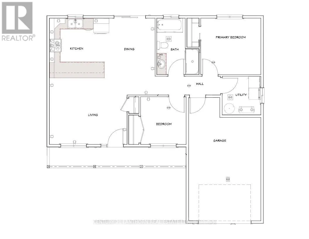
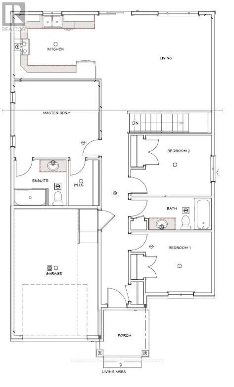
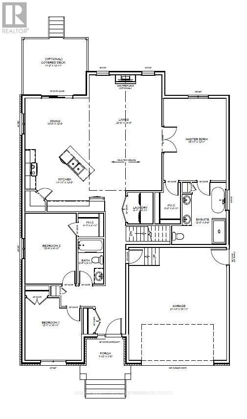
Cross Streets: HWY 401 and Palace Rd. ** Directions: From HWY 401, turn onto Palace Rd, South west 708A Palace Rd. Put your building cap on and explore the possibilities with this exceptional residential building lot located within town limits on sought after Palace Road in Greater Napanee. Offering approximately half an acre of cleared elevated land with beautiful hilltop views, this property combines space, scenery, and full municipal services including water, sewer, natural gas, and hydro. This property is ideally suited for a custom bungalow build, with multiple thoughtfully designed concept home options available through North Peak Homes, including layouts ranging from approximately 954 to 1,570 square feet with attached garages, open concept living spaces, vaulted ceiling options, and future lower level finishing potential. Buyers may customize a design or explore alternative layouts to suit their needs. Located just minutes from Highway 401 access, this property provides an easy commute to Kingston or Belleville while remaining within walking distance to downtown Greater Napanee amenities including the waterfront boardwalk, shops, restaurants, grocery stores, schools, and everyday conveniences. Enjoy the rare opportunity to build a modern custom home on a spacious serviced in town lot that offers the feel of country living with the convenience of municipal infrastructure already available. This is just a Vacant Land listing. (id:27476)

Property Highlights

MLS® Number
X12994220
Type
Vacant Land
Community Name
58 - Greater Napanee
Land Size
87.43 x 262.48 FT|1/2 - 1.99 acres

Building

Fireplace Present
No
Basement Type
Basement Features
Building Heating Type
Heating Fuel
Building Cooling Type

Location

Learn more about this property
Listing provided by:
CENTURY 21 LANTHORN REAL ESTATE LTD.
MLS® number:
X12994220
Agent:
Elliott Haatvedt
*Indicates required field
Name is required
Email is required
Please enter a valid phone number (e.g., 416-111-1111).