232 Wellington Street N, Hamilton, Ontario L8L 5A8

Listed for:
$575,000
3 beds
3 baths
Listed 12 days ago
Row / Townhouse for rent: 232 Wellington Street N, Hamilton, Ontario L8L 5A8

View all 39 photos

About

Barton & Wellington Completely rebuilt in 2017, this move-in-ready home delivers modern comfort with unbeatable convenience. Surprisingly quiet inside! Step inside to an airy open-concept main floor with real hardwood, soaring ceilings, a giant living room, separate dining room, rare main-floor 2-piece bath, and a spacious eat-in kitchen featuring quartz counters, stainless appliances, custom millwork, and abundant storage. Walk out to a private yard and 4-car rear parking (VERY rare for the area!) with alley access from both Barton and Robert St. Upstairs offers two bright bedrooms with continued hardwood and a full 4-piece bath. The top level is your private primary retreat - large enough for a bed plus office or sitting area - complete with ensuite and built-in closets. The finished lower level adds a generous flex space (currently used as a bedroom) with two walk-in closets, plus an immaculate utility/laundry room showcasing full waterproofing, proper insulation, and excellent storage. Perfect for families or investors, 232 Wellington St N sits steps to transit, close to Barton Village, Bayfront, and a world-class cardiac hospital. Turnkey living in a prime location! (id:27476)

Property Highlights

MLS® Number
40796326
Type
Single Family
Ownership Type
Freehold
Land Size
under 1/2 acre
Parking Space Total
4

Building

Building Type
Row / Townhouse
Storeys
2.50
Square Footage
1652 sqft
Bathrooms Total
3
Bedrooms Above Ground
3
Bedrooms Total
3
Amenities
Hospital, Public Transit
Exterior Finish
Brick
Fireplace Present
No
Basement Type
Full (Partially finished)
Basement Features
Building Heating Type
Forced air
Heating Fuel
Natural gas
Building Cooling Type
Central air conditioning

Utilities

Water
Municipal water
Utility Sewer
Municipal sewage system

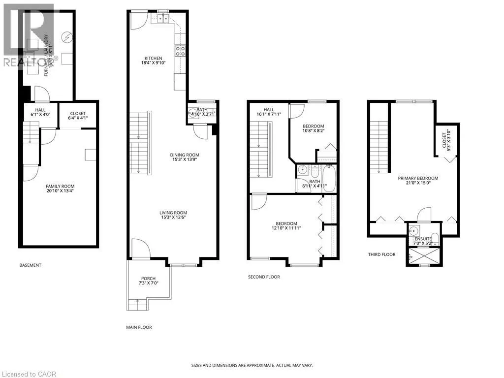
Room Layout

Bedroom
Second level
10'7'' x 8'10''
Bedroom
Second level
12'9'' x 10'8''
4pc Bathroom
Second level
7'0'' x 5'0''
3pc Bathroom
Third level
7'0'' x 3'10''
Primary Bedroom
Third level
21'10'' x 15'0''
Laundry room
Basement
16'5'' x 8'11''
Storage
Basement
6'4'' x 4'1''
Den
Basement
20'10'' x 13'4''
2pc Bathroom
Main level
4'10'' x 3'7''
Kitchen
Main level
18'4'' x 9'10''
Dining room
Main level
15'3'' x 13'9''
Living room
Main level
15'3'' x 13'0''

Location

Learn more about this property
Listing provided by:
Real Broker Ontario Ltd.
MLS® number:
40796326
Agent:
George Palios
*Indicates required field
Name is required
Email is required
Please enter a valid phone number (e.g., 416-111-1111).

Street Spotlight - For sale