1301 Upper Gage Avenue Unit# 34, Hamilton, Ontario L8W 1E5

Listed for:
$499,900
3 beds
2 baths
Listed 110 days ago
Row / Townhouse for rent: 1301 Upper Gage Avenue Unit# 34, Hamilton, Ontario L8W 1E5

View all 26 photos

About

Link to Upper Gage, go South to 1301 Upper Gage Welcome to this beautifully updated End-Unit Townhouse on the Hamilton Mountain! Offering 3 bedrooms, 1 and a half bathrooms, and the convenience of an attached garage. With its stylish finishes, thoughtful upgrades, and desirable location, this home is move-in ready and perfect for modern living! The main floor features hardwood and tile flooring, with an open-concept layout that flows seamlessly from the updated kitchen into the dining and living areas. The kitchen is a true highlight, showcasing stone counters, gas stove, a peninsula, and elegant cabinetry that beautifully ties the space together. The dining area transitions into the bright living room, where California shutters frame the patio doors that lead out to the private use yard, ideal for entertaining or relaxing. A convenient main-floor powder room completes this level. Upstairs, you'll find generously sized bedrooms and a fully renovated main bathroom, with stone counters and modern finishes. Updates throughout include replaced interior doors, and meticulous attention to detail that enhances the homes character and comfort. The unfinished basement offers laundry with gas dryer (and electric connection as well), garage access, and the opportunity to customize the space to your taste, whether you envision a family room, gym, or playroom. This property is perfectly situated close to shopping, schools, highway access, trails, and all the amenities the Hamilton Mountain has to offer. Combining style, convenience, and a prime location, this home is an excellent opportunity for families or professionals alike!! (id:27476)

Property Highlights

MLS® Number
40801277
Type
Single Family
Maintenance Fee
595.00
Ownership Type
Condominium
Land Size
Unknown
Parking Space Total
2

Building

Building Type
Row / Townhouse
Storeys
2.00
Square Footage
1152 sqft
Bathrooms Total
2
Bedrooms Above Ground
3
Bedrooms Total
3
Amenities
Schools, Shopping
Exterior Finish
Brick, Vinyl siding, Shingles
Fireplace Present
No
Basement Type
Full (Partially finished)
Basement Features
Building Heating Type
Forced air
Heating Fuel
Natural gas
Building Cooling Type
Central air conditioning

Utilities

Water
Municipal water
Utility Sewer
Municipal sewage system

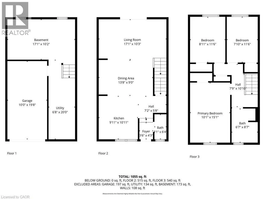
Room Layout

3pc Bathroom
Second level
8'7'' x 6'7''
Bedroom
Second level
11'6'' x 7'10''
Bedroom
Second level
11'6'' x 8'11''
Primary Bedroom
Second level
15'1'' x 10'1''
Utility room
Basement
20'0'' x 6'8''
Recreation room
Basement
17'1'' x 10'2''
2pc Bathroom
Main level
6'4'' x 3'1''
Living room
Main level
17'1'' x 10'3''
Dining room
Main level
13'8'' x 9'0''
Kitchen
Main level
10'11'' x 9'11''
Foyer
Main level
4'3'' x 3'6''

Location

Learn more about this property
Listing provided by:
Chase Realty Inc.
MLS® number:
40801277
Agent:
Julie Pielechaty
*Indicates required field
Name is required
Email is required
Please enter a valid phone number (e.g., 416-111-1111).

Street Spotlight - For sale