230 4th Street Crescent, Hanover, Ontario N4N 3S2

Listed for:
$739,000
4 beds
3 baths
Listed Today
House for rent: 230 4th Street Crescent, Hanover, Ontario N4N 3S2

View all 38 photos

About

Cross Streets: 230 4th Street Crescent, Hanover. ** Directions: From 2nd ave turn into 4th st cres. Discover one of the most pristine properties at 230 4th St Crescent in Hanover an exceptionally clean, meticulously maintained 3-bedroom, 3-bath home that is truly move-in ready and reflects uncompromising pride of ownership throughout. This bright open-concept residence features a updated kitchen that flows effortlessly into the living and dining areas, creating an ideal space for both everyday family life and gracious entertaining. A spacious sunroom overlooks fully fenced backyard Additional highlights include an insulated double-car garage with a newer door and opener, central air conditioning, a central vacuum system, and an in-ground sprinkler system that ensures effortless lawn care. The lower level has been beautifully finished with a convenient kitchenette and a 3-piece bathroom, providing excellent versatility for guests, or additional living space, while a garden shed supplies practical outdoor storage. Nestled in a friendly, established neighborhood, this turn-key home showcases exceptional care and attention to detail from top to bottom. Hanover offers the perfect blend of small-town charm and modern amenities, with a vibrant downtown featuring excellent shopping, dining, and local services. Residents enjoy outstanding recreational facilities at the Hanover P&H Centre. Nature lovers appreciate nearby Allan Park Conservation Area with its extensive trails, ponds, and year-round outdoor activities, as well as Sulphur Springs Conservation Area and the scenic Saugeen River. Further highlights include the Playtime Casino Hanover, live harness racing at Hanover Raceway, quality schools, the Hanover & District Hospital, and a rich calendar of community events - all contributing to an exceptional quality of life just 90 minutes from larger urban centers. This rare offering stands as one of the cleanest and best-presented homes in the area, combining timeless appeal with contemporary updates in a highly desirable location (id:27476)

Property Highlights

MLS® Number
X12943066
Type
Single Family
Community Name
Hanover
Ownership Type
Freehold
Land Size
60.7 x 111.7 FT|under 1/2 acre
Parking Space Total
4

Building

Building Type
House
Storeys
1.00
Square Footage
1500 - 2000 sqft
Bathrooms Total
3
Bedrooms Above Ground
3
Bedrooms Total
4
Exterior Finish
Brick
Fireplace Present
No
Basement Type
Partial (Partially finished)
Basement Features
Building Heating Type
Forced air
Heating Fuel
Natural gas
Building Cooling Type
Central air conditioning, Air exchanger

Utilities

Water
Municipal water
Utility Sewer
Sanitary sewer

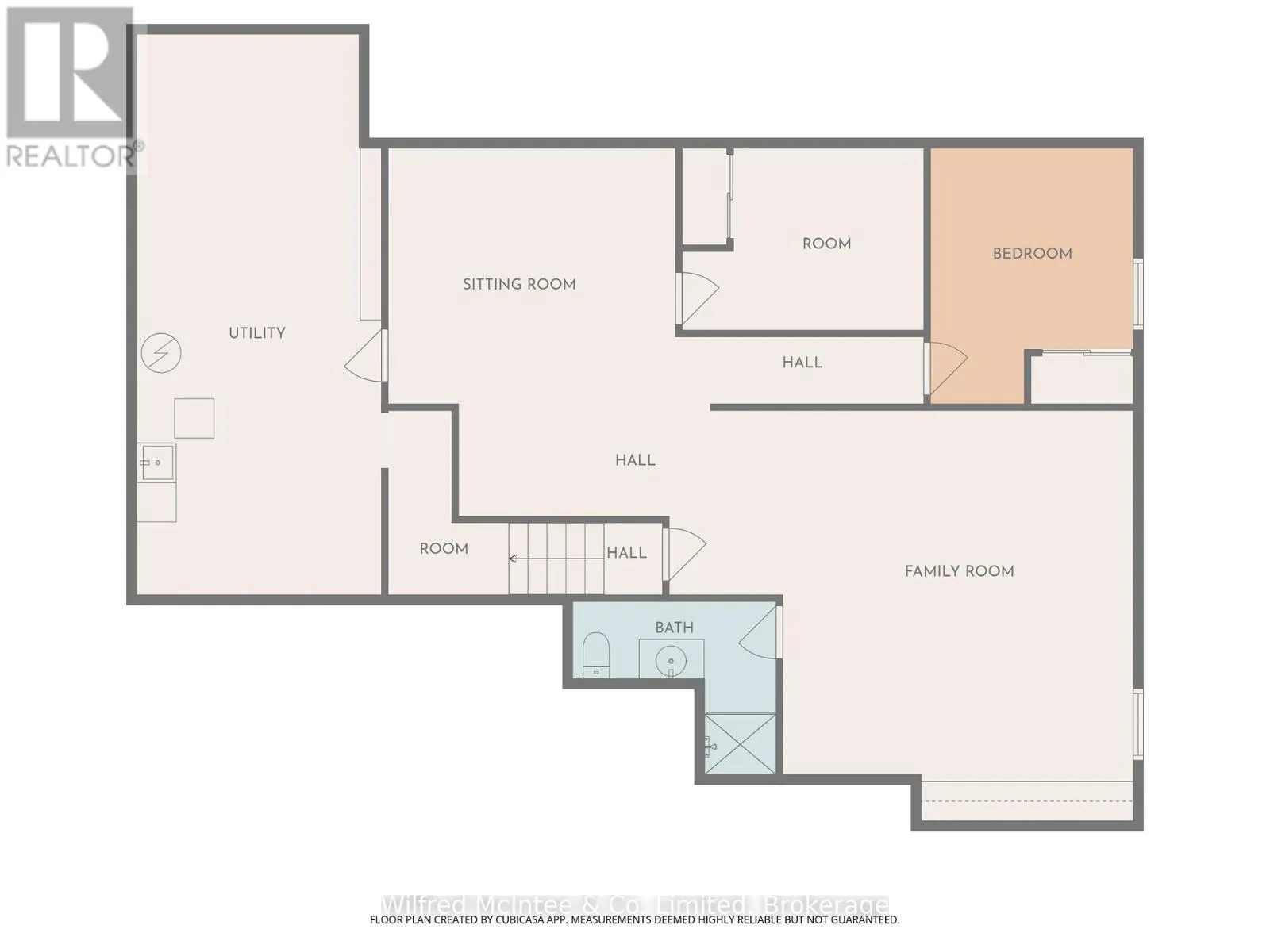
Room Layout

Recreational, Games room
Lower level
5.2 m x 5.7 m
Family room
Lower level
5.6 m x 4.5 m
Bathroom
Lower level
2.9 m x 1.4 m
Den
Lower level
3.6 m x 2.7 m
Den
Lower level
3.8 m x 2.8 m
Bathroom
Main level
2.4 m x 2.3 m
Bedroom
Main level
4.9 m x 3.9 m
Bathroom
Main level
2.4 m x 1.9 m
Bedroom
Main level
3.1 m x 3.7 m
Bedroom
Main level
3.1 m x 3.1 m
Living room
Main level
5.7 m x 4.7 m
Foyer
Main level
2.5 m x 1.8 m
Kitchen
Main level
3.7 m x 3.6 m
Dining room
Main level
3.5 m x 2.8 m
Laundry room
Main level
2.9 m x 1.5 m

Location

Learn more about this property
Listing provided by:
Wilfred McIntee & Co. Limited
MLS® number:
X12943066
Agent:
Dave Boonstoppel
*Indicates required field
Name is required
Email is required
Please enter a valid phone number (e.g., 416-111-1111).