1172 Main Street E, Hawkesbury, Ontario K6A 1C1

Listed for:
$399,900
3 beds
2 baths
Listed 37 days ago
House for rent: 1172 Main Street E, Hawkesbury, Ontario K6A 1C1

View all 46 photos

Learn more about this property
Listing provided by:
SEGUIN REALTY LTD
MLS® number:
X12571296
Agent:
Carole Seguin
*Indicates required field
Name is required
Email is required
Please enter a valid phone number (e.g., 416-111-1111).

About

1172 Main St. E. COME & DISCOVER 1172 MAIN ST. E. HAWKESBURY! Impeccably well maintained 2 Storey home situated on an oversized lot (8,191 sq. ft) awaits a family to enjoy all the extras this home will give you. Consisting of a spacious living room with gleaming hardwood flooring, 3 bedrooms, main floor laundry room with 2 piece bath, functional kitchen, 1374 sq. ft of living space, recent upgrades, economical forced air natural gas heating and gas hot water tank, plenty of paved parking space, beautiful front interlock landscaping. Move-in for Xmas! (id:27476)

Property Highlights

MLS® Number
X12571296
Type
Single Family
Community Name
612 - Hawkesbury
Ownership Type
Freehold
Land Size
38.5 x 129.8 FT
Parking Space Total
6

Building

Building Type
House
Storeys
2.00
Square Footage
1100 - 1500 sqft
Bathrooms Total
2
Bedrooms Above Ground
3
Bedrooms Total
3
Exterior Finish
Brick
Fireplace Present
No
Basement Type
Crawl space
Basement Features
Building Heating Type
Forced air
Heating Fuel
Natural gas
Building Cooling Type
None

Utilities

Water
Municipal water
Utility Sewer
Sanitary sewer

Room Layout

Primary Bedroom
Second level
5.14 m x 5 m
Bedroom
Second level
3.15 m x 3.3 m
Bedroom
Second level
3.16 m x 3.32 m
Other
Second level
2.35 m x 4.77 m
Bathroom
Second level
2.35 m x 1.85 m
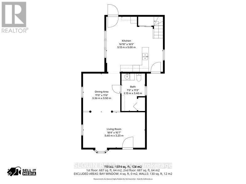
Kitchen
Main level
5.13 m x 5 m
Dining room
Main level
3.36 m x 3.5 m
Living room
Main level
5.6 m x 3.23 m
Bathroom
Main level
2.13 m x 3.4 m

Location