697 Omer Street, Hawkesbury, Ontario K6A 3G1

Listed for:
$524,900
3 beds
2 baths
Listed 12 days ago
House for rent: 697 Omer Street, Hawkesbury, Ontario K6A 3G1

View all 43 photos

About

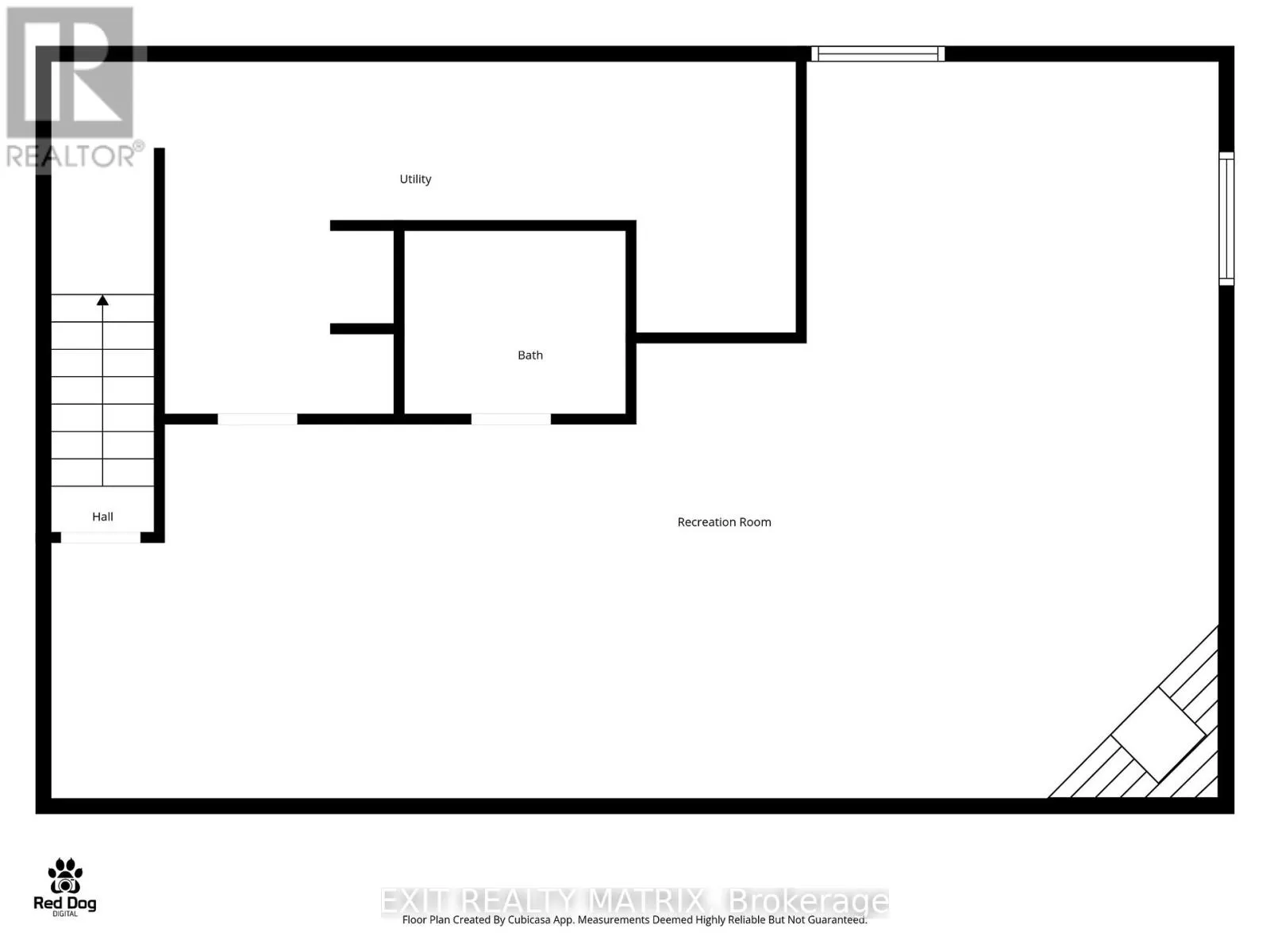
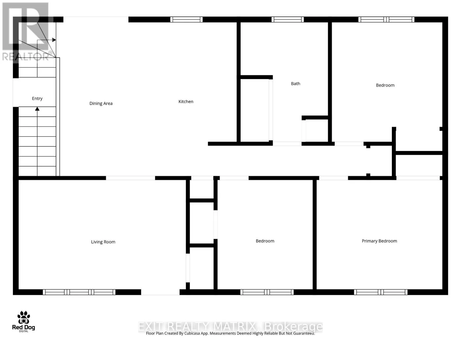
Cross Streets: Rejane. ** Directions: from Main st, turn right (south) on West st. Turn right on Rejane, Turn left on Omer, property is on your left. Welcome to this beautifully maintained family home, in a sought after family friendly neighborhood. Upon entering, you are greeted by beautiful hardwood floors in the living room, you will be drawn by the light flowing in from the south facing patio doors into the bright eat-in kitchen with quartz counter tops all new stainless steel appliances and a large center island perfect for entertaining. down the hall you will find 3 generous size bedrooms and a large recently updated main floor bathroom, with laundry. down in the basement you will find a very large recreational room with a gas fire place, perfect for staying warm all winter, a play room for the kids, a game room or even a home theater would be amazing in this space. you will also find a second full bathroom in the basement and a work shop/utility room. Outside, enjoy your private oversized lot complete with a heated above ground pool, hot tub and a spacious yard for kids and pets to play. With comfort, convenience and a true backyard retreat, this home is ready for your family to move in and make lasting memories. (id:27476)

Property Highlights

MLS® Number
X12750360
Type
Single Family
Community Name
612 - Hawkesbury
Ownership Type
Freehold
Land Size
60 x 235 FT
Parking Space Total
3

Building

Building Type
House
Storeys
1.00
Square Footage
700 - 1100 sqft
Bathrooms Total
2
Bedrooms Above Ground
3
Bedrooms Total
3
Amenities
Fireplace(s)
Exterior Finish
Brick Facing
Fireplace Present
Yes
Basement Type
N/A (Finished)
Basement Features
Building Heating Type
Forced air
Heating Fuel
Natural gas
Building Cooling Type
Central air conditioning

Utilities

Water
Municipal water
Utility Sewer
Sanitary sewer

Location

Learn more about this property
Listing provided by:
EXIT REALTY MATRIX
MLS® number:
X12750360
Agent:
Carley Mackinnon
*Indicates required field
Name is required
Email is required
Please enter a valid phone number (e.g., 416-111-1111).