40 Dormer Road, Kawartha Lakes, Ontario K9V 6H8

Listed for:
$674,900
2 beds
2 baths
Listed 80 days ago
House for rent: 40 Dormer Road, Kawartha Lakes, Ontario K9V 6H8

View all 29 photos

About

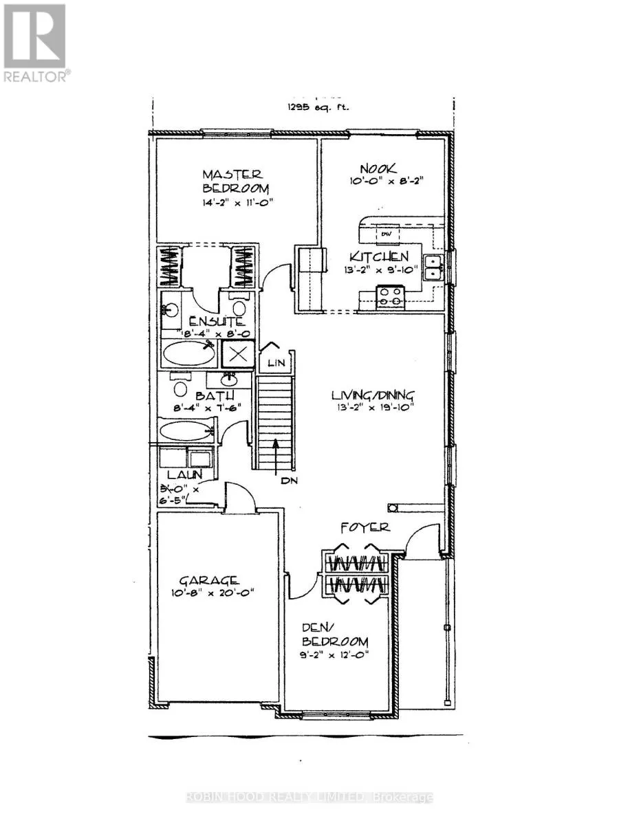
Wallace *** Additional Listing Details - Click Brochure Link *** Park-Side Bungalow with Rare 190ft Lot & Development Potential! Whether you are looking for a "forever home" with a mortgage-helper or a private sanctuary for multi-generational living, this property offers rare "triple-unit" potential under Ontario's Bill 23 legislation. The survey confirms a 2.24m to 2.25m side-yard clearance on the park-facing side of the house. This wide, unobstructed path is ideal for creating a private entrance or providing easy machinery access for a detached Garden Suite/Granny Flat. At 190.3 feet deep, the backyard currently features mature trees and plenty of shade, with more than enough room to accommodate a detached cottage while still maintaining a massive private yard. Bordering the park on your side boundary offers increased privacy, open views, and the benefit of having only one immediate residential neighbour. This bright, raised 1295 square foot bungalow with everything available on the main floor also features a spacious, high-ceiling unfinished basement with a 3-piece rough-in, perfectly suited for a legal second suite or a premium guest wing. New Additional Residential Units (ARUs) are currently exempt from municipal development charges, making this a high-value opportunity for a long-term housing solution. Prime location with easy access to local amenities and schools. The asking price reflects premium lot depth, park-side location and verified development access. (id:27476)

Property Highlights

MLS® Number
X12822164
Type
Single Family
Community Name
Lindsay
Ownership Type
Freehold
Land Size
35.6 x 190.3 FT
Parking Space Total
3

Building

Building Type
House
Storeys
1.00
Square Footage
1100 - 1500 sqft
Bathrooms Total
2
Bedrooms Above Ground
2
Bedrooms Total
2
Exterior Finish
Brick, Concrete
Fireplace Present
No
Basement Type
N/A (Unfinished)
Basement Features
Building Heating Type
Forced air
Heating Fuel
Natural gas
Building Cooling Type
Central air conditioning

Utilities

Water
Municipal water
Utility Sewer
Sanitary sewer

Location

Learn more about this property
Listing provided by:
ROBIN HOOD REALTY LIMITED
MLS® number:
X12822164
Agent:
Shamairah Noufaro
*Indicates required field
Name is required
Email is required
Please enter a valid phone number (e.g., 416-111-1111).

Community Spotlight: Homes For sale in Your Neighborhood