745 Sussex Boulevard, Kingston, Ontario K7M 5B4

Listed for:
$685,000
3 beds
3 baths
Listed 75 days ago
House for rent: 745 Sussex Boulevard, Kingston, Ontario K7M 5B4

View all 38 photos

About

Cross Streets: Development Drive, Hudson Drive, Sussex BLVD. ** Directions: Development Drive to Hudson Drive to Sussex BLVD (#745). Welcome to 745 Sussex Blvd - a beautifully updated 3 bed, 2.5 bath home that blends timeless craftsmanship with modern comfort. Located in a family oriented neighbourhood known for its walkability and welcoming atmosphere, this home sits close to green spaces, reputable schools, and essential amenities-an ideal setting for those seeking both comfort and community. This inviting residence features a bright living room anchored by a gas fireplace and durable LVT flooring throughout the main level. The renovated kitchen stands out with handmade cherry cabinetry, quartz countertops, a marble backsplash, and new stainless steel appliances, offering both character and quality rarely found today. Upstairs, you'll find three comfortable bedrooms and a refreshed main bathroom. The primary suite is a true retreat, enhanced by a newly built 4 piece ensuite and a spacious walk in closet that adds everyday convenience and luxury. The fully finished lower level extends your living space with a cozy rec/TV room, a stylish dry bar, and a renovated laundry room. Practicality continues outside with a two car carport, generous storage, and an interlock driveway that adds both curb appeal and durability. The backyard is equally impressive, featuring a rear Rayner patio, perennial gardens, and a fully fenced yard-a perfect space for relaxing, entertaining, or enjoying time outdoors. (id:27476)

Property Highlights

MLS® Number
X12838794
Type
Single Family
Community Name
37 - South of Taylor-Kidd Blvd
Ownership Type
Freehold
Land Size
60 x 120 FT|under 1/2 acre
Parking Space Total
6

Building

Building Type
House
Storeys
2.00
Square Footage
1500 - 2000 sqft
Bathrooms Total
3
Bedrooms Above Ground
3
Bedrooms Total
3
Amenities
Fireplace(s) Public Transit
Exterior Finish
Brick, Vinyl siding
Fireplace Present
Yes
Basement Type
Full (Finished)
Basement Features
Building Heating Type
Forced air
Heating Fuel
Natural gas
Building Cooling Type
Central air conditioning

Utilities

Water
Municipal water
Utility Sewer
Sanitary sewer

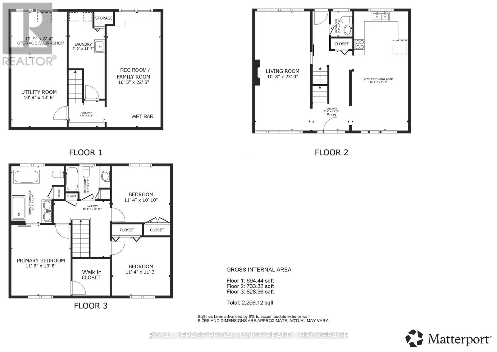
Room Layout

Utility room
Lower level
3.28 m x 4.17 m
Laundry room
Lower level
2.13 m x 4.14 m
Recreational, Games room
Lower level
3.18 m x 6.83 m
Other
Lower level
3.28 m x 2.54 m
Living room
Main level
3.25 m x 7.01 m
Foyer
Main level
2.16 m x 4.7 m
Kitchen
Main level
3.33 m x 7.01 m
Bathroom
Main level
1.27 m x 1.5 m
Primary Bedroom
Upper Level
3.51 m x 4.17 m
Bathroom
Upper Level
3.1 m x 3.35 m
Bedroom
Upper Level
3.45 m x 3.3 m
Bedroom
Upper Level
3.45 m x 3.43 m
Bathroom
Upper Level
2.62 m x 1.93 m

Location

Learn more about this property
Listing provided by:
ROYAL LEPAGE PROALLIANCE REALTY, BROKERAGE
MLS® number:
X12838794
Agent:
Adam Koven
*Indicates required field
Name is required
Email is required
Please enter a valid phone number (e.g., 416-111-1111).