50 Pine Warbler Drive Unit# Lot 0024, Kitchener, Ontario N2P 0K7

Listed for:
$1,099,900
4 beds
4 baths
Listed 87 days ago
House for rent: 50 Pine Warbler Drive Unit# Lot 0024, Kitchener, Ontario N2P 0K7

View all 8 photos

About

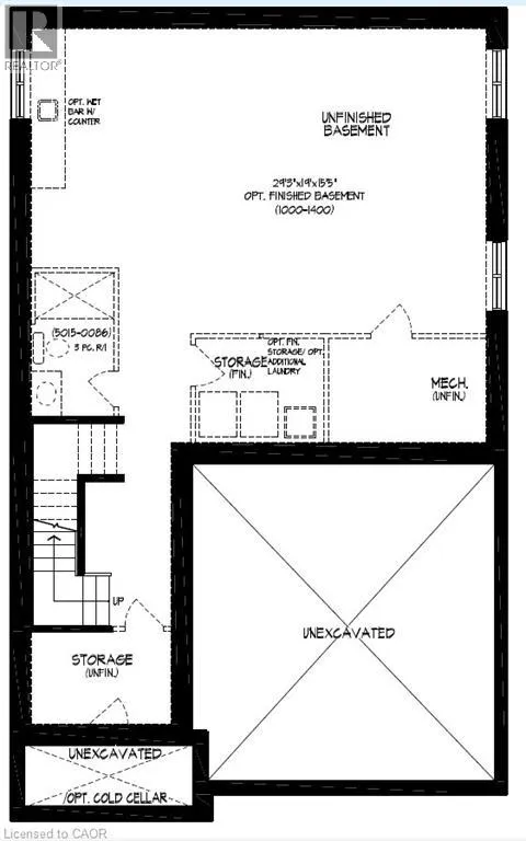
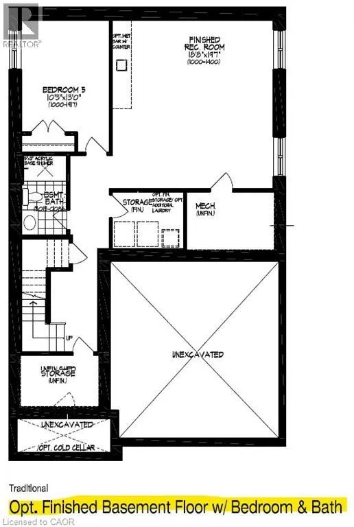
Hwy 401 exit Homer Watson Blvd - take New Dundee Rd to Stauffer Woods Trail to Pine Warbler - New Subdivision Sales Office at 154 Shaded Creek just around the corner from the lot A bright and airy design the Meera T offers 2,781sf. Main floor begins with a large foyer, and conveniently located 2pc powder room by the garage entrance. Main floor mudroom with direct access to the garage. Follow the main hall and enter, into the open concept great room, kitchen and dinette area. Large custom kitchen witch Granite counters, 36 upper cabinets and large kitchen island with breakfast bar. The second floor offers 4 bedrooms with walk-in closets, 3 full baths (Optional upper laundry room sold separately.) Primary suite includes an oversized walk-in closet, a large luxury ensuite with a walk-in 5 x 3 tiled shower with glass enclosure, his and hers sinks in an over-sized vanity and a stand alone soaker tub. Bedroom 3 & 4 share a Jack & Jill style ensuite, computer nook and another full bath completes this level. Select your finishes with the Builder's Designer Team to fully presonalize your home! Enjoy the benefits and comforts of a NetZero Ready built home. The unfinished basement includes 8' 7 ceiling height, a rough-in for future bath and egress windows. Sought out location in Doon South community Harvest Park. Minutes to Hwy 401, express way, shopping, schools, golfing, walking trails and other amenities. (id:27476)

Property Highlights

MLS® Number
40765929
Type
Single Family
Ownership Type
Freehold
Land Size
under 1/2 acre
Parking Space Total
4

Building

Building Type
House
Storeys
2.00
Square Footage
2781 sqft
Bathrooms Total
4
Bedrooms Above Ground
4
Bedrooms Total
4
Amenities
Golf Nearby, Park, Place of Worship, Public Transit, Schools
Exterior Finish
Brick, Stone, Vinyl siding
Fireplace Present
No
Basement Type
Full (Unfinished)
Basement Features
Building Heating Type
Forced air, Heat Pump
Heating Fuel
Natural gas
Building Cooling Type

Utilities

Water
Municipal water
Utility Sewer
Municipal sewage system

Room Layout

4pc Bathroom
Second level
Measurements not available
4pc Bathroom
Second level
Measurements not available
Full bathroom
Second level
Measurements not available
Bedroom
Second level
13'5'' x 11'1''
Bedroom
Second level
10'8'' x 11'1''
Bedroom
Second level
13'3'' x 10'4''
Primary Bedroom
Second level
19'0'' x 13'0''
Mud room
Main level
Measurements not available
Laundry room
Main level
Measurements not available
2pc Bathroom
Main level
Measurements not available
Great room
Main level
15'0'' x 20'5''
Kitchen
Main level
14'8'' x 10'0''
Dining room
Main level
14'7'' x 9'10''

Location

Learn more about this property
Listing provided by:
RE/MAX TWIN CITY REALTY INC.
MLS® number:
40765929
Agent:
Ewa Munch
*Indicates required field
Name is required
Email is required
Please enter a valid phone number (e.g., 416-111-1111).