7 Pine Warbler Street Unit# Lot 0002, Kitchener, Ontario N2P 0K7

Listed for:
$999,900
3 beds
3 baths
Listed 152 days ago
House for rent: 7 Pine Warbler Street Unit# Lot 0002, Kitchener, Ontario N2P 0K7

View all 7 photos

About

Hwy 401 exit Homer Watson Blvd - take New Dundee Rd to Stauffer Woods Trail to Pine Warbler - New Subdivision Sales Office at 154 Shaded Creek just around the corner from the lot The Miles 2 T plan offers 2,436 sf and is located in the sought-out Doon South Harvest Park community, minutes from Hwy 401, parks, nature walks, shopping, schools, transit and more. This home features 3 Bedrooms, 2 1/2 baths and a double car garage. (4 Bedroom option available, sold separately) The Main floor begins with a foyer, a 2pc powder room large mudroom by the garage entrance and a large walk in closet off of the main hallway. The main living area is an open concept floor plan with 9ft ceilings, large custom Kitchen, dinette and great room. Main floor is carpet free finished with quality Hardwoods in the great room, ceramic tiles in kitchen, dinette, foyer, laundry and all baths. Kitchen is a custom design with a large kitchen island with breakfast bar and granite counters. Second floor features 3 spacious bedrooms, a family room, laundry and two full baths. Primary suite includes an Ensuite with a walk-in tile shower w/glass enclosure, double sink vanity and a stand alone soaker tub. Also, in the primary suite you will find an oversized walk-in closet. Enjoy the benefits an comforts of a NetZero Ready built home. Closing scheduled for Summer 2026 Various Lots and other plans available. (id:27476)

Property Highlights

MLS® Number
40765935
Type
Single Family
Ownership Type
Freehold
Land Size
under 1/2 acre
Parking Space Total
4

Building

Building Type
House
Storeys
2.00
Square Footage
2436 sqft
Bathrooms Total
3
Bedrooms Above Ground
3
Bedrooms Total
3
Amenities
Golf Nearby, Park, Playground, Schools
Exterior Finish
Brick, Vinyl siding
Fireplace Present
No
Basement Type
Full (Unfinished)
Basement Features
Building Heating Type
Heat Pump
Heating Fuel
Building Cooling Type

Utilities

Water
Municipal water
Utility Sewer
Municipal sewage system

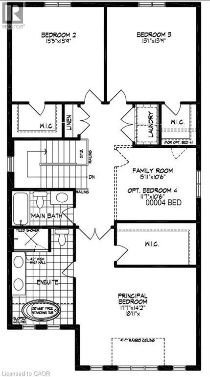
Room Layout

Laundry room
Second level
Measurements not available
4pc Bathroom
Second level
Measurements not available
Family room
Second level
15'11'' x 10'6''
Bedroom
Second level
13'1'' x 13'9''
Bedroom
Second level
13'5'' x 13'9''
Full bathroom
Second level
Measurements not available
Primary Bedroom
Second level
17'7'' x 14'2''
2pc Bathroom
Main level
Measurements not available
Great room
Main level
13'0'' x 18'7''
Dinette
Main level
12'8'' x 9'10''
Kitchen
Main level
12'8'' x 11'3''

Location

Learn more about this property
Listing provided by:
PEAK REALTY LTD.
MLS® number:
40765935
Agent:
Leah Ellis Small
*Indicates required field
Name is required
Email is required
Please enter a valid phone number (e.g., 416-111-1111).