19 Lois Court, Lambton Shores, Ontario N0M 1T0

Listed for:
$899,900
4 beds
3 baths
Listed 128 days ago
House for rent: 19 Lois Court, Lambton Shores, Ontario N0M 1T0

View all 3 photos

Learn more about this property
Listing provided by:
SUTTON GROUP - SELECT REALTY
MLS® number:
X12279796
Agent:
Ruth Dean
*Indicates required field
Name is required
Email is required
Please enter a valid phone number (e.g., 416-111-1111).

About

Brooklawn Dr Quality and value are paramount in this impressive offering from Rice Homes. With 2,369 sq. ft.of finished living area this 4 bedroom, 3 bath home is sure to please. Features include: open concept living area with 9 & 10' ceilings,gas fireplace, centre island with kitchen, 3 appliances, main floor laundry, master ensuite with walk in closet, pre-engineered hardwood floors, front and rear covered porches, full partially finished basement, Hardie Board exterior for low maintenance. Concrete drive & walkway. Call or email L.A. for long list of standard features and finishes. Newport Landing features an incredible location just a short distance from all the amenities Grand Bend is famous for. Walk to shopping, beach, medical and restaurants! Noe! short term rentals are not allowed in this development, enforced by restrictive covenants registered on title. Price includes HST for Purchasers buying as principal residence. Property has not been assessed yet. (id:27476)

Property Highlights

MLS® Number
X12279796
Type
Single Family
Community Name
Grand Bend
Ownership Type
Freehold
Land Size
53.7 x 100.3 FT
Parking Space Total
6

Building

Building Type
House
Storeys
1.00
Square Footage
1100 - 1500 sqft
Bathrooms Total
3
Bedrooms Above Ground
2
Bedrooms Total
4
Amenities
Fireplace(s) Beach, Golf Nearby
Exterior Finish
Hardboard, Stone
Fireplace Present
Yes
Basement Type
N/A (Partially finished)
Basement Features
Building Heating Type
Forced air
Heating Fuel
Natural gas
Building Cooling Type
Central air conditioning, Air exchanger

Utilities

Water
Municipal water
Utility Sewer
Sanitary sewer

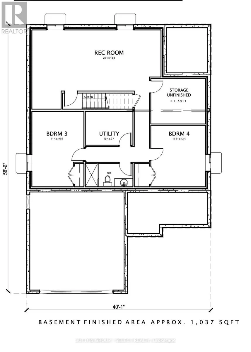
Room Layout

Utility room
Lower level
3.15 m x 2.24 m
Other
Lower level
3.63 m x 3.02 m
Recreational, Games room
Lower level
8.79 m x 4.04 m
Bedroom 3
Lower level
5 m x 3.45 m
Bedroom 4
Lower level
4.06 m x 3.63 m
Foyer
Main level
2.26 m x 1.43 m
Kitchen
Main level
3.89 m x 3.51 m
Dining room
Main level
4.98 m x 3.51 m
Living room
Main level
2.21 m x 4.29 m
Primary Bedroom
Main level
4.27 m x 3.51 m
Bedroom 2
Main level
3.51 m x 3.35 m
Laundry room
Main level
2.13 m x 1.83 m

Location

Community Spotlight: Homes For sale in Your Neighborhood