34 Alberta Street, Lambton Shores, Ontario N0M 1T0

Listed for:
$1,124,900
4 beds
4 baths
Listed 40 days ago
House for rent: 34 Alberta Street, Lambton Shores, Ontario N0M 1T0

View all 50 photos

Learn more about this property
Listing provided by:
ROYAL LEPAGE TRILAND REALTY
MLS® number:
X12451693
Agent:
Stewart Blair
*Indicates required field
Name is required
Email is required
Please enter a valid phone number (e.g., 416-111-1111).

About

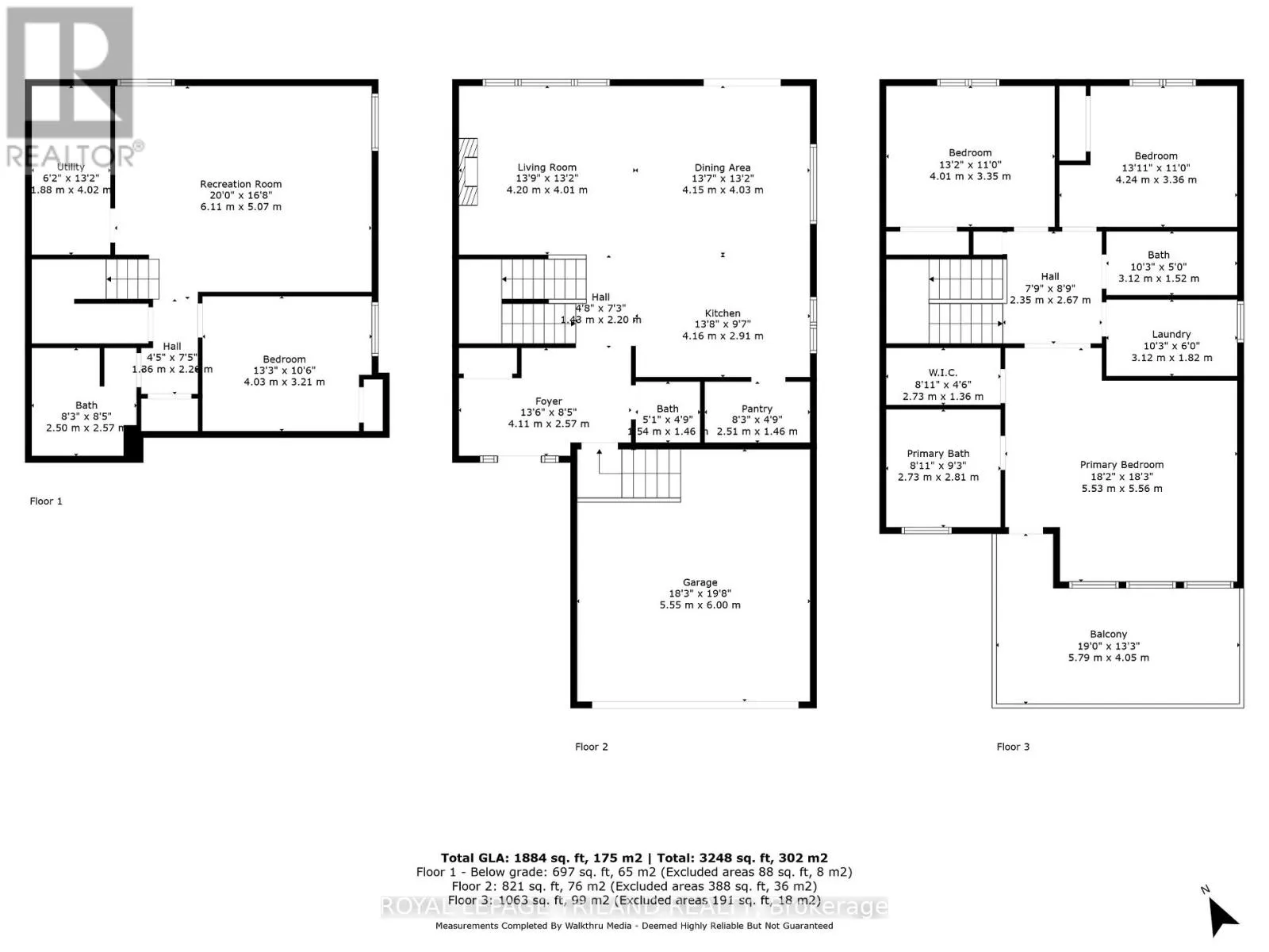
Cross Streets: River Rd. ** Directions: South of Main St, head west toward lake on River Rd, then south on Alberta Street. Welcome to 34 Alberta Street-A Custom Build by Cloverwood Homes, Steps from the Shores of Grand Bend. Located 500 meters from South Beach and minutes to the marina, restaurants, and local shops, this stunning 4-bedroom, 4-bathroom home is the perfect blend of luxury, design, and functionality. Built on a deep 200 ft lot, the home offers 3,248 sq ft of living space across three levels, crafted with exceptional attention to detail and offered with a full Tarion New Home Warranty. Inside you'll find a spacious, open-concept main floor with 10-foot ceilings, oversized windows that fill the home with natural light and engineered hardwood flooring throughout. The kitchen features imported Turkish natural stone countertops and backsplash, a walk-in pantry, and custom built-in appliances, including a Fulgor Milano fridge. Designer tile work, solid core interior doors, and Moen and Delta fixtures add to the refined aesthetic. The second floor boasts vaulted ceilings up to 14 feet, along with a luxurious primary suite complete with a walk-in closet, spa-like ensuite, and a walk-out balcony. The finished basement continues the bright, airy feel with 9-foot ceilings and generous window openings. This home is equipped with high-end mechanical systems, including a 60,000 BTU furnace, 2.5-ton AC unit, HRV system, hot water recovery unit, and a gas manifold. Energy efficiency is prioritized with spray foam-insulated joist pockets in the basement and garage ceilings. Outside, you'll find maintenance-free composite siding, custom glass railings, an exposed concrete driveway, and an oversized garage perfect for storing a boat. The garage itself is insulated and spray-foamed for year-round usability. Sound insulation between homes has also been upgraded for added privacy and comfort. Whether you're looking for a year-round residence or a high-end seasonal escape, 34 Alberta Street offers a combination of location, design, and build quality in one of Grand Bends most sought-after areas. (id:27476)

Property Highlights

MLS® Number
X12451693
Type
Single Family
Community Name
Grand Bend
Ownership Type
Freehold
Land Size
33.5 x 200.2 FT
Parking Space Total
8

Building

Building Type
House
Storeys
2.00
Square Footage
2000 - 2500 sqft
Bathrooms Total
4
Bedrooms Above Ground
3
Bedrooms Total
4
Amenities
Fireplace(s) Beach, Marina, Golf Nearby
Exterior Finish
Stucco, Stone
Fireplace Present
Yes
Basement Type
Full (Finished)
Basement Features
Building Heating Type
Forced air
Heating Fuel
Natural gas
Building Cooling Type
Central air conditioning

Utilities

Water
Municipal water
Utility Sewer
Sanitary sewer

Room Layout

Primary Bedroom
Second level
5.53 m x 5.56 m
Bedroom
Second level
4.01 m x 3.35 m
Bedroom
Second level
4.24 m x 3.36 m
Laundry room
Second level
3.12 m x 1.82 m
Utility room
Lower level
1.88 m x 4.02 m
Recreational, Games room
Lower level
6.11 m x 5.07 m
Bedroom
Lower level
4.03 m x 3.21 m
Foyer
Main level
4.11 m x 2.57 m
Living room
Main level
4.2 m x 4.01 m
Kitchen
Main level
4.16 m x 2.91 m
Dining room
Main level
4.15 m x 4.03 m

Location