Lot 3 Tenth Street, LaSalle, Ontario N8N 1M2

Listed for:
$1,050,000
4 beds
3 baths
Listed 2 days ago
House for rent: Lot 3 Tenth Street, LaSalle, Ontario N8N 1M2

View all 10 photos

About

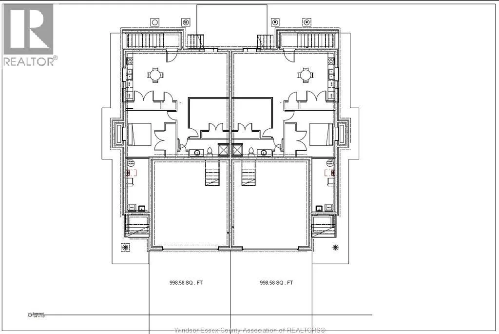
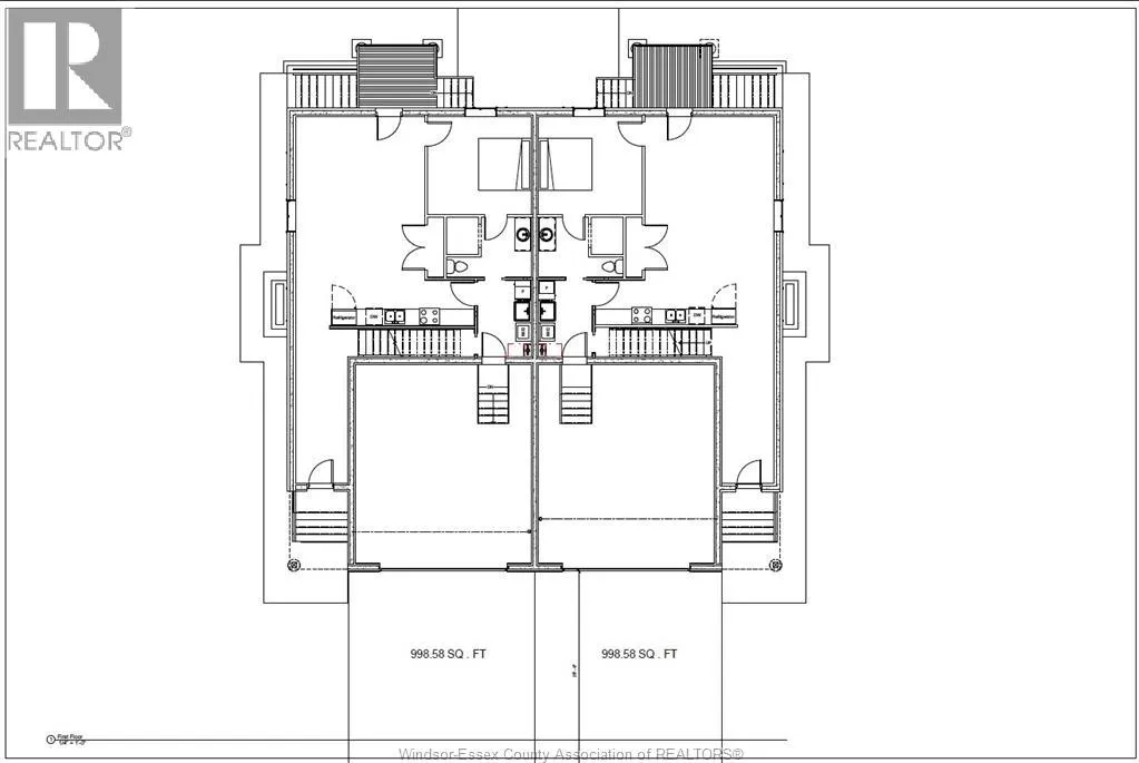
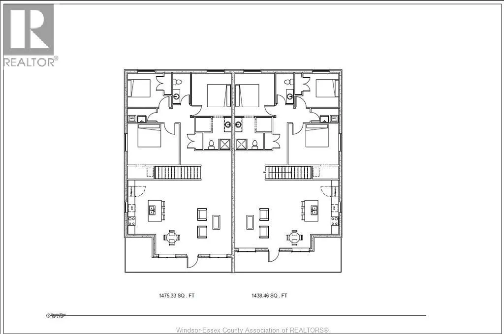
Multi-Generational Living | Net Zero Ready Solar Optional | Income Potential. SAVE UP TO $130,000 ON YOUR NEW HOME! TO BE BUILT HOME Experience modern luxury in the heart of LaSalle with approx. 2400sq.ft. Living space this home is designed for today’s evolving families. Built with premium ICF construction, this property delivers superior soundproofing, durability, exceptional energy efficiency—offering lower utility costs for long-term value. Featuring 2 storey Semi with 6 bedrooms, 4 full baths, 3 kitchens, 3 laundry, 2 car garage. This home is perfectly configured for multi-family living with privacy. The innovative 3-in-1 layout includes a main floor 1-bed suite, spacious 3-bed upper level, lower level can be potential ADU. PLEASE NOTE CURRENT PRICING NOW REFLECTS THE ONTARIO GOVERNMENTS FULL ** HST REBATE **Contact Listing Agent directly for more information and promotions today!! (id:27476)

Property Highlights

MLS® Number
26007730
Type
Single Family
Ownership Type
Freehold
Land Size
37.25 X 109.28 FT

Building

Building Type
House
Storeys
2.00
Square Footage
2400 sqft
Bathrooms Total
3
Bedrooms Above Ground
4
Bedrooms Total
4
Exterior Finish
Aluminum/Vinyl, Brick
Fireplace Present
No
Basement Type
Basement Features
Building Heating Type
Heat Pump, Heat Recovery Ventilation (HRV)
Heating Fuel
Electric, Solar
Building Cooling Type
Central air conditioning, Heat Pump

Location

Learn more about this property
Listing provided by:
KW SIGNATURE
MLS® number:
26007730
Agent:
Joe Fallea
*Indicates required field
Name is required
Email is required
Please enter a valid phone number (e.g., 416-111-1111).