7 Satinwood, Leamington, Ontario N8H 4P1

Listed for:
$452,000
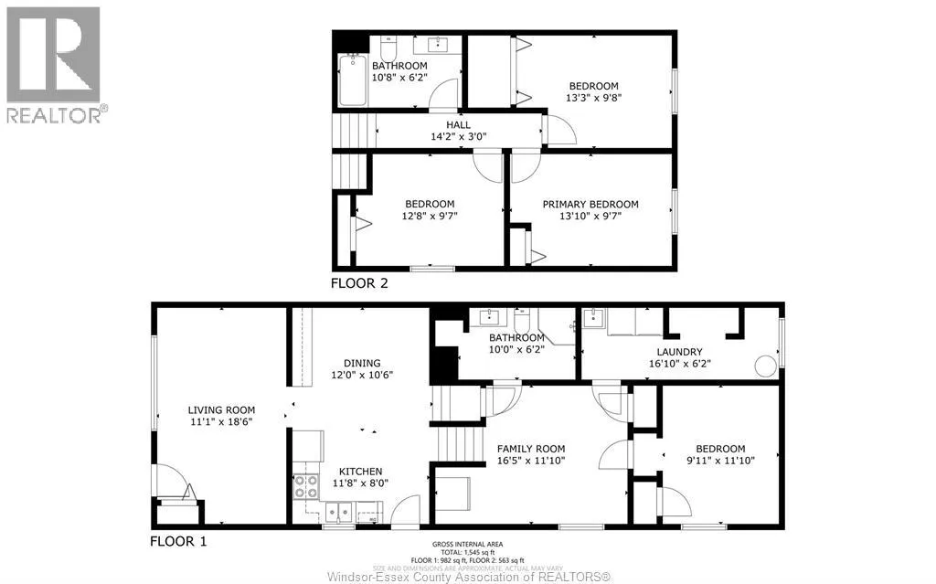
4 beds
2 baths
Listed 27 days ago
7 Satinwood, Leamington, Ontario N8H 4P1

View all 33 photos

About

Welcome to 7 Satinwood, a traditional semi-detached Back Split 3-Level in the heart of a quiet Leamington neighbourhood. This well kept home offers a smart layout with 4 bedrooms and 2 full bathrooms for busy families or guests. Enjoy the fresh look and easy maintenance of newer vinyl flooring throughout most of the home, along with comfortable, functional living spaces on all levels. Step outside to backyard, perfect for summer BBQs, kids, pets, or simply relaxing. Conveniently located close to shopping, groceries, restaurants, downtown Leamington, and all everyday amenities. Zoned R2, offering added flexibility and potential income opportunities (buyer to verify permitted uses), including the possibility of a short-term rental/Airbnb. Don't miss your chance to make it yours! (id:27476)

Property Highlights

MLS® Number
26001418
Type
Single Family
Ownership Type
Freehold
Land Size
32 X 113 FT / 0.8 AC

Building

Bathrooms Total
2
Bedrooms Above Ground
3
Bedrooms Total
4
Exterior Finish
Aluminum/Vinyl, Brick, Concrete/Stucco
Fireplace Present
No
Basement Type
Basement Features
Building Heating Type
Forced air, Furnace
Heating Fuel
Natural gas
Building Cooling Type
Central air conditioning

Location

Learn more about this property
Listing provided by:
REMAX PREFERRED REALTY LTD. - 588
MLS® number:
26001418
Agent:
Devin Garganta
*Indicates required field
Name is required
Email is required
Please enter a valid phone number (e.g., 416-111-1111).