201 - 339 Horton Street E, London East, Ontario N6B 1L6

Listed for:
$2,385
0 beds
0 baths
Listed 309 days ago
201 - 339 Horton Street E, London East, Ontario N6B 1L6

View all 14 photos

About

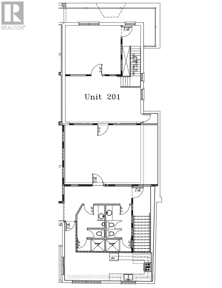
Cross Streets: Horton and Waterloo. ** Directions: From Wellington Road, East on Horton Street, just past Waterloo Street. Welcome to Horton Place, located in Historic Downtown SoHo in London, Ontario, Canada! With convenient drive-up free parking for staff & clients, this stunning designer office space boasts large bright windows and exquisite architectural details. Features include common washrooms & showers, a fully-equipped staffroom with locked personal storage, modern robust commercial infrastructure with a dedicated 3-phase electrical panel & fibre optic internet backbone. Walk to downtown attractions including Dundas Place shops & restaurants, Budweiser Gardens sports & entertainment, VIA RAIL station, Victoria Park, waterfront parks & bike paths, and much more! (id:27476)

Property Highlights

MLS® Number
X12280089
Type
Retail
Community Name
East K
Land Size
70 x 143 FT

Building

Square Footage
1000 sqft
Amenities
Public Transit
Fireplace Present
No
Basement Type
Basement Features
Building Heating Type
Forced air
Heating Fuel
Natural gas
Building Cooling Type
Fully air conditioned

Utilities

Water
Municipal water

Location

Learn more about this property
Listing provided by:
STREETCITY REALTY INC.
MLS® number:
X12280089
Agent:
Shannon Howard
*Indicates required field
Name is required
Email is required
Please enter a valid phone number (e.g., 416-111-1111).