203 - 339 Horton Street E, London East, Ontario N6B 1L6

Listed for:
$2,573
0 beds
0 baths
Listed 120 days ago
203 - 339 Horton Street E, London East, Ontario N6B 1L6

View all 12 photos

Learn more about this property
Listing provided by:
STREETCITY REALTY INC.
MLS® number:
X12392518
Agent:
Shannon Howard
*Indicates required field
Name is required
Email is required
Please enter a valid phone number (e.g., 416-111-1111).

About

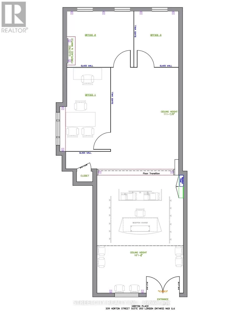
Cross Streets: Horton and Waterloo. ** Directions: From Wellington Rd, East on Horton St, just past Waterloo St. Welcome to Horton Place, located in Historic Downtown SoHo in London Ontario Canada! With convenient drive-up free parking for staff & clients, this stunning designer office space boasts large bright windows and exquisite architectural details. Features include common washrooms & showers, fully-equipped staff room with locked personal storage, modern robust commercial infrastructure with dedicated 3-phase electrical panel & fibre optic internet backbone. Walk to downtown attractions including Dundas Place shops & restaurants, Budweiser Gardens sports & entertainment, VIA Rail Station, Victoria park, waterfront parks & bike paths, and much more! (id:27476)

Property Highlights

MLS® Number
X12392518
Type
Retail
Community Name
East K
Land Size
70 x 143 FT

Building

Square Footage
1075 sqft
Amenities
Public Transit
Fireplace Present
No
Basement Type
Basement Features
Building Heating Type
Forced air
Heating Fuel
Natural gas
Building Cooling Type
Fully air conditioned

Utilities

Water
Municipal water

Location