1408 Twilite Boulevard, London North, Ontario N6G 3R5

Listed for:
$824,900
4 beds
3 baths
Listed 64 days ago
House for rent: 1408 Twilite Boulevard, London North, Ontario N6G 3R5

View all 38 photos

Learn more about this property
Listing provided by:
STREETCITY REALTY INC.
MLS® number:
X12486049
Agent:
Dion Edwards
*Indicates required field
Name is required
Email is required
Please enter a valid phone number (e.g., 416-111-1111).

About

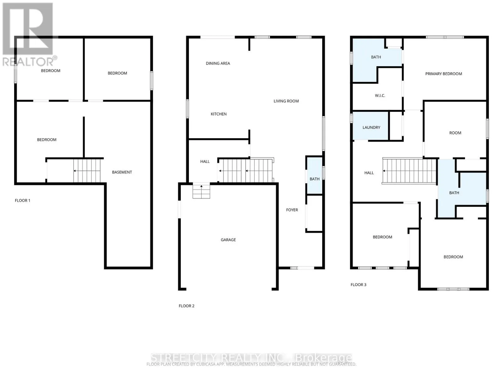
Cross Streets: Jordan Blvd & Twilite Blvd. ** Directions: Turn onto Twilite from Hyde Park Road. Continue through the round about onto Twilite Blvd. House is on the left hand side. Welcome to 1408 Twilite Blvd, a spacious, modern family home nestled in one of London's most desirable newer communities. This well-maintained two-storey property offers over 2,900 sq ft of total living space and the ideal layout for growing families, multigenerational living, or savvy investors.Upstairs, you'll find four generous bedrooms, including a primary suite with a walk-in closet and private ensuite featuring a soaker tub and separate shower. A thoughtfully designed cheater ensuite connects to one of the secondary bedrooms and serves the remaining two bedrooms as well, offering shared access without compromising privacy. A second-floor laundry room adds extra convenience where it's needed most.The main floor is open concept, filled with natural light and ideal for entertaining. The kitchen features crisp white cabinetry, a stylish backsplash, and an island overlooking the spacious dining and living areas. A powder room near the front entry is perfect for guests, and the functional layout flows seamlessly throughout.A standout feature is the shared mudroom that connects both the garage and basement staircase, offering convenient but indirect access to the lower level. The unfinished basement provides incredible potential for future development, whether you're planning a rec room, home gym, or a secondary suite (buyer to verify zoning and approvals).Located close to schools, parks, shopping, and major commuter routes, this is a rare opportunity to own a well-designed home in a growing neighbourhood.Don't miss your chance. Book your private tour today! (id:27476)

Property Highlights

MLS® Number
X12486049
Type
Single Family
Community Name
North S
Ownership Type
Freehold
Land Size
12 x 35.3 FT
Parking Space Total
4

Building

Building Type
House
Storeys
2.00
Square Footage
2000 - 2500 sqft
Bathrooms Total
3
Bedrooms Above Ground
4
Bedrooms Total
4
Exterior Finish
Brick, Vinyl siding
Fireplace Present
No
Basement Type
N/A (Unfinished)
Basement Features
Building Heating Type
Forced air
Heating Fuel
Natural gas
Building Cooling Type
Central air conditioning

Utilities

Utility Sewer
Sanitary sewer

Room Layout

Bedroom 4
Second level
3.9 m x 4.08 m
Bedroom 3
Second level
3.94 m x 3.76 m
Bedroom 2
Second level
3.67 m x 3.32 m
Laundry room
Second level
2.11 m x 1.68 m
Primary Bedroom
Second level
4.91 m x 4.26 m
Kitchen
Main level
3.55 m x 2.9 m
Dining room
Main level
3.54 m x 3.04 m
Living room
Main level
4.38 m x 7.05 m

Location

Community Spotlight: Homes For sale in Your Neighborhood