260 Villagewalk Boulevard, London North, Ontario N6G 0W6

Listed for:
$3,200
3 beds
2 baths
Listed Today
Apartment for rent: 260 Villagewalk Boulevard, London North, Ontario N6G 0W6

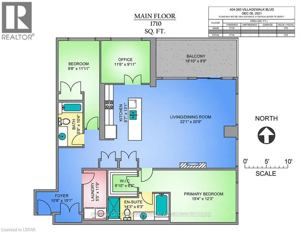
View all 41 photos

About

Cross Streets: Sunningdale & Meadowlands Way. ** Directions: Sunningdale to Meadowlands to Villagewalk. Available June 1st! Welcome to Village North II. This Exclusive Tricar building is located in London's sought after North end. Village North has everything you have ever wanted in a condominium. This bright corner unit has 1710 sq. ft. of luxury living space. Just imagine enjoying your morning coffee on your large, private north facing balcony. Including two (2) exclusive parking spaces! One underground and one above ground. This unit features an oversized foyer, a large in-suite laundry room, 2 bright bedrooms, 2 full bathrooms, and even a bonus office/den (which is large enough to double as a bedroom)! The open concept living space, dining room and kitchen offer plenty of room. Featuring an electric fireplace, stainless steel appliances, gleaming hardwood, granite countertops throughout and tile flooring - no carpet here!. Just wait until you see the endless available amenities, including a heated indoor pool, well appointed fitness centre, golf simulator room, theatre room, and resident lounge with pool & ping pong tables. In addition to the extensive on-site amenities listed above, it also covers all your heating and water costs! There are even guests suites available! Come see what all the fuss is about! Photos seen in listing are current - the unit is in incredible condition. (id:27476)

Property Highlights

MLS® Number
X13020522
Type
Single Family
Community Name
North R
Ownership Type
Condominium/Strata
Parking Space Total
2

Building

Building Type
Apartment
Square Footage
1600 - 1799 sqft
Bathrooms Total
2
Bedrooms Above Ground
3
Bedrooms Total
3
Amenities
Exercise Centre, Visitor Parking, Fireplace(s) Golf Nearby, Schools
Exterior Finish
Concrete
Fireplace Present
Yes
Basement Type
None
Basement Features
Building Heating Type
Forced air
Heating Fuel
Natural gas
Building Cooling Type
Central air conditioning

Location

Learn more about this property
Listing provided by:
SUTTON GROUP PREFERRED REALTY INC.
MLS® number:
X13020522
Agent:
Colin Trevor
*Indicates required field
Name is required
Email is required
Please enter a valid phone number (e.g., 416-111-1111).

Street Spotlight - For rent