Lot 23 Ayrshire Avenue, London South, Ontario N6P 0J5

Listed for:
$925,000
4 beds
3 baths
Listed 448 days ago
House for rent: Lot 23 Ayrshire Avenue, London South, Ontario N6P 0J5

View all 39 photos

About

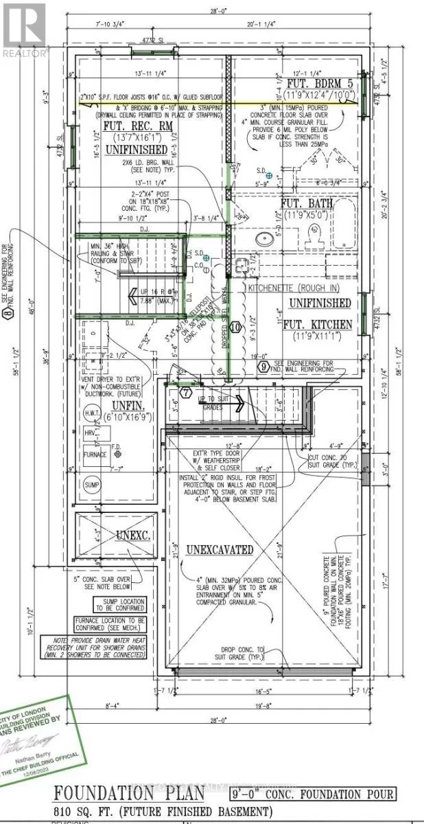
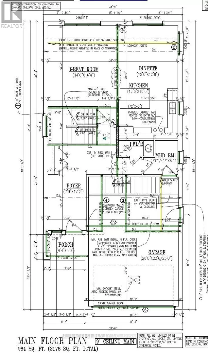
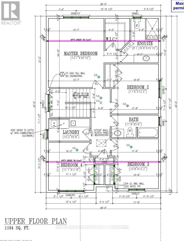
Campbell St N Welcome to this stunning TO BE BUILT home, a contemporary two-storey home designed for modern living. As you enter through the foyer, you'll be greeted by an expansive open-concept layout offering a great room, dinette, and kitchen, perfect for both entertaining and everyday living. The main floor is completed with a convenient mudroom and a 2-piece bath. Upstairs, you'll find four generously sized bedrooms, including a luxurious primary suite with a four-piece en-suite bathroom. The unfinished basement offers endless possibilities, with ample space to create a fifth bedroom, a recreational room, and an additional bathroom. This home combines elegance, functionality, and potential, making it an ideal choice for your family's next chapter. TO BE BUILT photos are from a previously built model. Other designs available, contact to learn more (id:27476)

Property Highlights

MLS® Number
X11938487
Type
Single Family
Community Name
South V
Ownership Type
Freehold
Land Size
46.7 x 111.6 FT|under 1/2 acre
Parking Space Total
6

Building

Building Type
House
Storeys
2.00
Square Footage
2000 - 2500 sqft
Bathrooms Total
3
Bedrooms Above Ground
4
Bedrooms Total
4
Exterior Finish
Brick
Fireplace Present
No
Basement Type
Full (Unfinished)
Basement Features
Building Heating Type
Forced air
Heating Fuel
Natural gas
Building Cooling Type
Central air conditioning

Utilities

Water
Municipal water
Utility Sewer
Sanitary sewer

Room Layout

Primary Bedroom
Second level
4.2 m x 4.9 m
Bedroom 2
Second level
3.5 m x 3.7 m
Bedroom 3
Second level
3.3 m x 3.7 m
Bedroom 4
Second level
3.4 m x 3.6 m
Laundry room
Second level
3.1 m x 1.7 m
Great room
Main level
4.3 m x 5 m
Dining room
Main level
3.7 m x 3.9 m
Kitchen
Main level
3.7 m x 3 m
Mud room
Main level
2.1 m x 1.9 m
Foyer
Main level
2.4 m x 5.2 m

Location

Learn more about this property
Listing provided by:
BLUE FOREST REALTY INC.
MLS® number:
X11938487
Agent:
Klaud Czeslawski
*Indicates required field
Name is required
Email is required
Please enter a valid phone number (e.g., 416-111-1111).