2704 Bobolink Lane, London South, Ontario N6M 0J9

Listed for:
$917,000
4 beds
4 baths
Listed 59 days ago
House for rent: 2704 Bobolink Lane, London South, Ontario N6M 0J9

View all 3 photos

Learn more about this property
Listing provided by:
ROYAL LEPAGE TRILAND PREMIER BROKERAGE
MLS® number:
X12195944
Agent:
Anne Kingshott
*Indicates required field
Name is required
Email is required
Please enter a valid phone number (e.g., 416-111-1111).

About

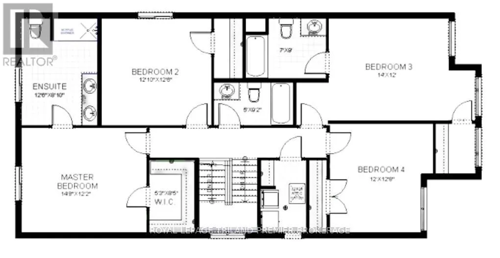
FROM HAMILTON ROAD HEAD EAST ONTO BOBOLINK LNE (NEAR COMMISSIONERS) TO BE BUILT: Sunlight Heritage Homes presents the Gill Model, an exquisite home designed to meet your family's every need. Located in the charming Old Victoria community, this residence combines modern convenience with classic elegance. With a spacious 2,345 square feet layout, the Gill Model features 4 bedrooms, including 2 masters as well as 3.5 luxurious baths, offering both style and functionality. The 2- car garage provides ample space for vehicles and storage, catering to all your practical needs. Unique to this model is the unfinished basement, ready to be customized to suit your preferences, with walkout lots available for easy access to outdoor space and natural light. The Gill Model stands as a testament to superior craftsmanship and thoughtful design, ensuring comfort and luxury in every corner. Join the vibrant Old Victoria community and make the Gill Model your forever home. Standard features include 36" high cabinets in the kitchen, quartz countertops in the kitchen, 9' ceilings on main floor, laminate flooring throughout main level, stainless steel chimney style range hood in kitchen, crown and valance on kitchen cabinetry, built in microwave shelf in kitchen, coloured windows on the front of the home, basement bathroom rough-in. (id:27476)

Property Highlights

MLS® Number
X12195944
Type
Single Family
Community Name
South U
Ownership Type
Freehold
Land Size
35 x 108 FT
Parking Space Total
4

Building

Building Type
House
Storeys
2.00
Square Footage
2000 - 2500 sqft
Bathrooms Total
4
Bedrooms Above Ground
4
Bedrooms Total
4
Amenities
Public Transit
Exterior Finish
Brick, Vinyl siding
Fireplace Present
No
Basement Type
Full (Unfinished)
Basement Features
Building Heating Type
Forced air
Heating Fuel
Natural gas
Building Cooling Type
Central air conditioning

Utilities

Water
Municipal water
Utility Sewer
Sanitary sewer

Room Layout

Bedroom 4
Second level
3.66 m x 3.86 m
Bathroom
Second level
Measurements not available
Bedroom
Second level
4.47 m x 1.57 m
Bedroom 2
Second level
3.91 m x 3.81 m
Bedroom 3
Second level
4.27 m x 3.66 m
Foyer
Main level
4.83 m x 1.88 m
Living room
Main level
6.15 m x 3.66 m
Bathroom
Main level
Measurements not available
Dining room
Main level
3.78 m x 3.48 m
Kitchen
Main level
3.78 m x 3.48 m
Mud room
Main level
2.59 m x 1.68 m
Pantry
Main level
2.59 m x 1.68 m

Location

Street Spotlight - For sale