6674 Hayward Drive, London South, Ontario N6P 0H7

Listed for:
$699,900
2 beds
2 baths
Listed 53 days ago
Row / Townhouse for rent: 6674 Hayward Drive, London South, Ontario N6P 0H7

View all 23 photos

Learn more about this property
Listing provided by:
CENTURY 21 FIRST CANADIAN CORP
MLS® number:
X12369050
Agent:
Patrick Hazzard
*Indicates required field
Name is required
Email is required
Please enter a valid phone number (e.g., 416-111-1111).

About

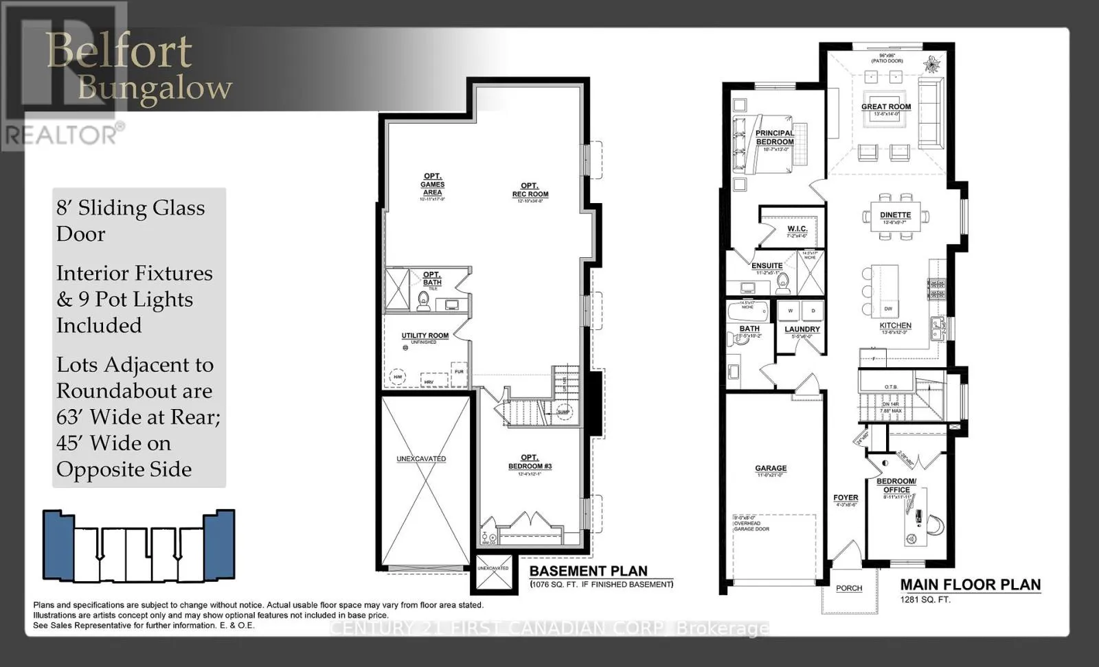
Cross Streets: Campbell Street and Main Street. ** Directions: Northeast corner of Hayward Drive and Campbell Street North. MOVE-IN READY FREEHOLD BUNGALOW TOWNHOME --- This end-unit 2 Bed, 2 Full Bath executive layout bookends the townblock, providing a Grand, Award-Winning road appeal. Thoughtfully designed and well-appointed throughout, this home offers 1,281 SqFt on the main level, plus an impressive 1,076 SqFt of unfinished basement. The main level features an open concept kitchen, dinette and great room complete with a 12' vaulted ceiling and 8' sliding patio door. Located on expansive 45' wide by 120' deep lots with a 6' tall perimeter fence installed by the builder, these homes are perfect for an outdoor oasis. The stone masonry and Hardie-paneling exterior combine timeless design with performance materials to offer beauty & peace of mind. A 12"x12" interlocking paver stone driveway and trees installed by the builder complete this community. This neighbourhood is in the vibrant Lambeth community, within the Lambeth Public School boundary, and close to Highways 401 & 402, Shopping Centres, Golf Courses, and Boler Mountain Ski Hill alike. Contact the Listing Agent to discuss options and schedule a private showing today! (id:27476)

Property Highlights

MLS® Number
X12369050
Type
Single Family
Community Name
South V
Ownership Type
Freehold
Land Size
45.9 x 118.8 FT
Parking Space Total
2

Building

Building Type
Row / Townhouse
Storeys
1.00
Square Footage
1100 - 1500 sqft
Bathrooms Total
2
Bedrooms Above Ground
2
Bedrooms Total
2
Amenities
Fireplace(s) Park, Place of Worship, Schools, Golf Nearby
Exterior Finish
Stone, Wood
Fireplace Present
Yes
Basement Type
Full (Unfinished)
Basement Features
Building Heating Type
Forced air
Heating Fuel
Natural gas
Building Cooling Type
Central air conditioning, Air exchanger

Utilities

Water
Municipal water
Utility Sewer
Sanitary sewer

Location