1597 Chickadee Trail, London South, Ontario N6M 1G4

Listed for:
$794,900
4 beds
3 baths
Listed 180 days ago
House for rent: 1597 Chickadee Trail, London South, Ontario N6M 1G4

View all 29 photos

About

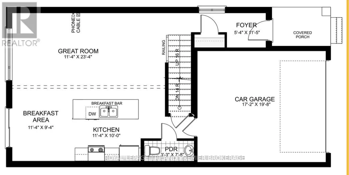
Cross Streets: ORIOLE AND CHICKADEE. ** Directions: FROM HAMILTON ROAD, HEAD EAST ON ORIOLE DRIVE. TO BE BUILT! Sunlight Heritage Homes presents The Broderick. 1949 sq ft of expertly designed living space located in desirable Old Victoria on the Thames. Enter into the generous open concept main level featuring kitchen with quartz countertops, 36" upper cabinets with valance and crown moulding, microwave shelf and island with breakfast bar; great room with 9' ceilings and large bright window, dinette with sliding door access to the backyard and convenient main floor 2-piece bathroom. The upper level includes 4 spacious bedrooms including primary suite with walk in closet and 4-piece ensuite with double sinks; laundry closet and main bathroom. Other standard inclusions: Hardwood flooring throughout main level (except bathroom), 5' patio slider, 9' ceilings on main level, bathroom rough-in in basement, drywalled garage and more! Other lots and plans to choose from. Photos are from previous model and show upgraded items. (id:27476)

Property Highlights

MLS® Number
X12455087
Type
Single Family
Community Name
South U
Ownership Type
Freehold
Land Size
38 x 98 FT
Parking Space Total
3

Building

Building Type
House
Storeys
2.00
Square Footage
1500 - 2000 sqft
Bathrooms Total
3
Bedrooms Above Ground
4
Bedrooms Total
4
Exterior Finish
Brick, Vinyl siding
Fireplace Present
No
Basement Type
Full (Unfinished)
Basement Features
Building Heating Type
Forced air
Heating Fuel
Natural gas
Building Cooling Type
Central air conditioning

Utilities

Water
Municipal water
Utility Sewer
Sanitary sewer

Location

Learn more about this property
Listing provided by:
ROYAL LEPAGE TRILAND PREMIER BROKERAGE
MLS® number:
X12455087
Agent:
Anne Kingshott
*Indicates required field
Name is required
Email is required
Please enter a valid phone number (e.g., 416-111-1111).