1585 Chickadee Trail, London South, Ontario N6M 1G4

Listed for:
$829,900
4 beds
3 baths
Listed 180 days ago
House for rent: 1585 Chickadee Trail, London South, Ontario N6M 1G4

View all 42 photos

About

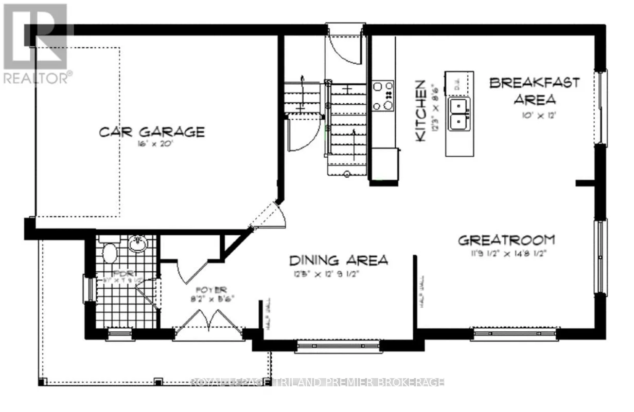
Cross Streets: ORIOLE AND CHICKADEE. ** Directions: FROM HAMILTON ROAD, HEAD EAST ON ORIOLE DRIVE. TO BE BUILT: Sunlight Heritage Homes presents the Percy Model, an exceptional home designed to cater to your family's needs and desires. Situated in the desirable Old Victoria on the Thames community, this residence offers a perfect blend of contemporary style and timeless charm. The Percy Model boasts a well- planned 2,030 square feet layout, featuring 4 bedrooms and 2.5 baths, providing ample space for both relaxation and the conveniences of everyday living. The 1.5 car garage offers convenient storage and parking solutions. Set on a prominent corner lot, the home enjoys enhanced curbappeal and additional outdoor space. The unfinished basement offers a versatile space with endless potential. Experience superior craftsmanship and thoughtful design in the Percy Model, and become a part of the vibrant Old Victoria community. Standard features include 36" high cabinets in the kitchen, quartz countertops in the kitchen, 9' ceilings on main floor, hardwood flooring throughout main level, stainless steel chimney style range hood in kitchen, crown and valance on kitchen cabinetry, built in microwave shelf in kitchen, coloured windows on the front of the home, basement bathroom rough-in. Photos are from previous model and show upgraded items. (id:27476)

Property Highlights

MLS® Number
X12455091
Type
Single Family
Community Name
South U
Ownership Type
Freehold
Land Size
42 x 98 FT
Parking Space Total
3

Building

Building Type
House
Storeys
2.00
Square Footage
2000 - 2500 sqft
Bathrooms Total
3
Bedrooms Above Ground
4
Bedrooms Total
4
Exterior Finish
Brick, Vinyl siding
Fireplace Present
No
Basement Type
Full (Unfinished)
Basement Features
Building Heating Type
Forced air
Heating Fuel
Natural gas
Building Cooling Type
Central air conditioning

Utilities

Water
Municipal water
Utility Sewer
Sanitary sewer

Location

Learn more about this property
Listing provided by:
ROYAL LEPAGE TRILAND PREMIER BROKERAGE
MLS® number:
X12455091
Agent:
Anne Kingshott
*Indicates required field
Name is required
Email is required
Please enter a valid phone number (e.g., 416-111-1111).