4225 Green Bend, London South, Ontario N6P 1J9

Listed for:
$1,198,500
5 beds
4 baths
Listed 18 days ago
House for rent: 4225 Green Bend, London South, Ontario N6P 1J9

View all 36 photos

Learn more about this property
Listing provided by:
ROYAL LEPAGE TRILAND REALTY
MLS® number:
X12490850
Agent:
Sharon Allison-prelazzi
*Indicates required field
Name is required
Email is required
Please enter a valid phone number (e.g., 416-111-1111).

About

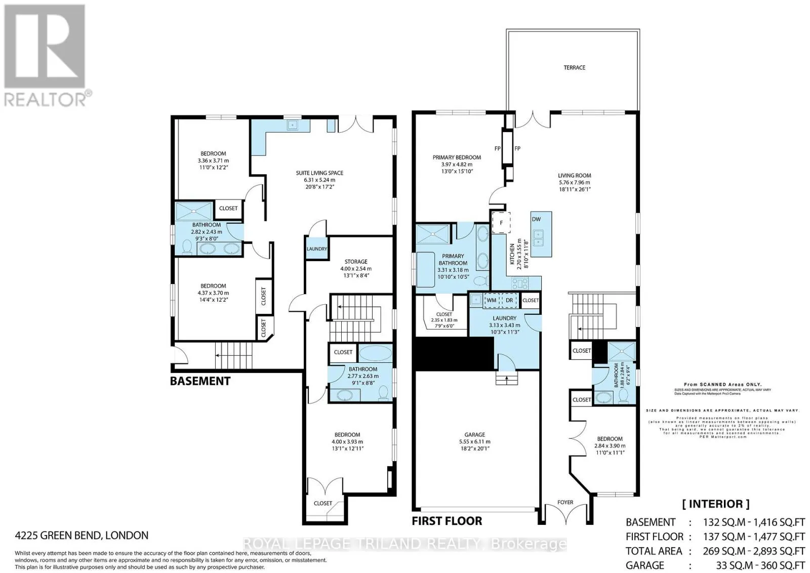
Cross Streets: HAMLYN RD. ** Directions: WONDERLAND RD S TO HAMLYN RD (LIBERTY CROSSING SUBDIVISION). NEW MODEL HOME FOR SALE located in "LIBERTY CROSSING" situated in the Coveted SOUTH! Fabulous WALK OUT LOT BACKING ONTO PICTURESQUE TREES -This FULLY FINISHED BUNGALOW - (known as the PRIMROSE Elevation A) Features 1572 sq Ft of Quality Finishes on Main Floor PLUS an Additional 1521 Sq Ft in Lower level. Numerous Upgrades Throughout! Open Concept Kitchen Overlooking Livingroom/ Dinning Room Combo featuring Terrace Doors leading out to a Spectacular Deck - it also features a wonderful Double Sided Fireplace for the living room & primary bedroom. **Note**Lower Level Features a 3rd Bedroom and 4 PC Bath as part of the Primary Suite as well as a Secondary Suite featuring 2 Bedrooms, Kitchen, Living Room & 4 PC Bath! Terrace Doors to backyard.**NOTE** SEPARATE SIDE ENTRANCE to Finished Lower Level! Wonderful 9 Foot Ceilings on Main Floor with12 Ft Ceiling in Foyer - IMMEDIATE POSSESSION Available -Great SOUTH Location!!- Close to Several Popular Amenities! Easy Access to the 401 & 402!Experience the Difference and Quality Built by: WILLOW BRIDGE HOMES (id:27476)

Property Highlights

MLS® Number
X12490850
Type
Single Family
Community Name
South V
Ownership Type
Freehold
Land Size
42 x 113 FT|under 1/2 acre
Parking Space Total
4

Building

Building Type
House
Storeys
1.00
Square Footage
1500 - 2000 sqft
Bathrooms Total
4
Bedrooms Above Ground
2
Bedrooms Total
5
Amenities
Fireplace(s)
Exterior Finish
Brick, Vinyl siding
Fireplace Present
Yes
Basement Type
N/A (Finished), N/A
Basement Features
Walk out, Separate entrance
Building Heating Type
Forced air
Heating Fuel
Natural gas
Building Cooling Type
Central air conditioning

Utilities

Water
Municipal water
Utility Sewer
Sanitary sewer

Room Layout

Bedroom 3
Lower level
4 m x 3.93 m
Bedroom 4
Lower level
4.37 m x 3.7 m
Bedroom 5
Lower level
3.36 m x 3.71 m
Living room
Lower level
6.31 m x 5.24 m
Utility room
Lower level
4 m x 2.54 m
Kitchen
Main level
3.7 m x 3.55 m
Living room
Main level
5.76 m x 7.96 m
Primary Bedroom
Main level
3.97 m x 4.82 m
Bedroom 2
Main level
2.84 m x 3.9 m
Laundry room
Main level
3.13 m x 3.43 m

Location

Street Spotlight - For sale