Lot 128 Big Leaf Trail, London South, Ontario N6P 1H5

Listed for:
$939,900
4 beds
3 baths
Listed 66 days ago
House for rent: Lot 128 Big Leaf Trail, London South, Ontario N6P 1H5

View all 30 photos

About

Cross Streets: BIG LEAF TR & HEATHWOODS. ** Directions: HEAD EAST ON ROYAL MAGNOLIA FIELDS FROM COLONEL TALBOT RD; BIG LEAF TRAIL WILL BE ON YOUR RIGHT HAND SIDE. TO BE BUILT - OCCUPANCY SUMMER 2026 - OPPORTUNITY TO CUSTOMIZE! This 4-bed, 3.5-bath home by Ferox Design Build offers modern design, high-end finishes, and a layout built for real life. Features include: *Attached garage *Main floor office *Open-concept living *Kitchen with walk-in pantry *Spacious primary suite with walk-in closet + ensuite *Jack & Jill bath connecting two of the 3 additional bedrooms. Prime location just minutes from top schools, community centre, shopping, and quick access to Hwy 401 & 402.Your dream home starts here, customize your finishes and make it yours! 1.99% financing available for up to three years with Libro Credit Union. (id:27476)

Property Highlights

MLS® Number
X12629444
Type
Single Family
Community Name
South V
Ownership Type
Freehold
Land Size
50.7 x 114.8 FT
Parking Space Total
4

Building

Building Type
House
Storeys
2.00
Square Footage
2000 - 2500 sqft
Bathrooms Total
3
Bedrooms Above Ground
4
Bedrooms Total
4
Amenities
Park
Exterior Finish
Brick
Fireplace Present
Yes
Basement Type
Full
Basement Features
Building Heating Type
Forced air
Heating Fuel
Natural gas
Building Cooling Type
Central air conditioning

Utilities

Water
Municipal water
Utility Sewer
Sanitary sewer

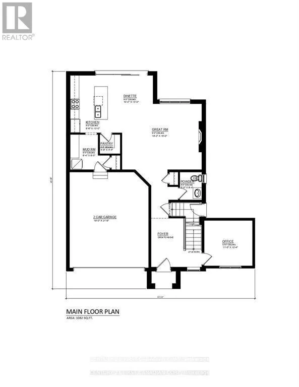
Room Layout

Primary Bedroom
Second level
4.54 m x 3.66 m
Bathroom
Second level
2.41 m x 3.66 m
Bedroom
Second level
3.08 m x 3.35 m
Bathroom
Second level
2.35 m x 1.25 m
Bedroom
Second level
3.35 m x 3.35 m
Bathroom
Second level
3.35 m x 1.25 m
Bedroom
Second level
3.35 m x 2.96 m
Office
Main level
3.35 m x 3.17 m
Bathroom
Main level
1.5 m x 1.95 m
Great room
Main level
5.55 m x 4.57 m
Dining room
Main level
3.17 m x 3.96 m
Kitchen
Main level
2.62 m x 3.96 m
Mud room
Main level
1.95 m x 2.44 m

Location

Learn more about this property
Listing provided by:
CENTURY 21 FIRST CANADIAN CORP
MLS® number:
X12629444
Agent:
Dagmar Dospial
*Indicates required field
Name is required
Email is required
Please enter a valid phone number (e.g., 416-111-1111).

Street Spotlight - For sale