Lot 38 Fallingbrook Road, London South, Ontario N6P 1H5

Listed for:
$1,490,950
4 beds
4 baths
Listed 56 days ago
House for rent: Lot 38 Fallingbrook Road, London South, Ontario N6P 1H5

View all 23 photos

About

North on Colonel Talbot Rd, right on Heathwoods ave, right on Fallingbrook rd in London You're not just buying a home, you're designing the one you'll love coming home to every day. In Heathwoods, Lambeth, this to-be-built 4-bed, 3.5-bath residence by Halcyon Homes. Each model serves as an architectural starting point, offering you the creative freedom to fully customize the interior without being restricted to a fixed floor plan. From the flow of the main floor, to the mood of the lighting and the finishes underfoot. Wake to golden light in a quiet primary retreat, brew coffee in a chef-ready kitchen that opens to a sun-washed great room, and let evenings spill onto an oversized backyard. Experience 4232 Fallingbrook Road's extra deep lot of 50' x 152', backing onto mature trees for rare privacy. At Halcyon, you're never boxed into a blueprint or upsold into confusion. Their transparent design-build process puts your ideas ahead, and delivers quality, clarity, and peace of mind at every step. Stroll to Lambeth Village, where you'll find cafés and trails, with seamless access to the Hwy 401/402 when needed. Enjoy the suburban ease that has made London South one of the region's most desirable places to live. Pricing reflects the Arvada model in the Essential collection, with the Myra model shown featuring Lifestyle selections. Only a few opportunities remain in The Heathwoods. Explore plans, finishes, and timelines, and secure your custom new construction in Lambeth, Ontario, while it's still available. To experience the Halcyon standard, we invite you to walk through The Myra Model Home located at 4100 Fallingbrook Road for a taste of what your future home could be. (id:27476)

Property Highlights

MLS® Number
X12761266
Type
Single Family
Community Name
South V
Ownership Type
Freehold
Land Size
50 x 152 FT
Parking Space Total
4

Building

Building Type
House
Storeys
2.00
Square Footage
2500 - 3000 sqft
Bathrooms Total
4
Bedrooms Above Ground
4
Bedrooms Total
4
Amenities
Fireplace(s) Schools
Exterior Finish
Brick, Aluminum siding
Fireplace Present
Yes
Basement Type
N/A (Unfinished)
Basement Features
Building Heating Type
Forced air
Heating Fuel
Electric
Building Cooling Type
Central air conditioning, Air exchanger

Utilities

Water
Municipal water
Utility Sewer
Sanitary sewer

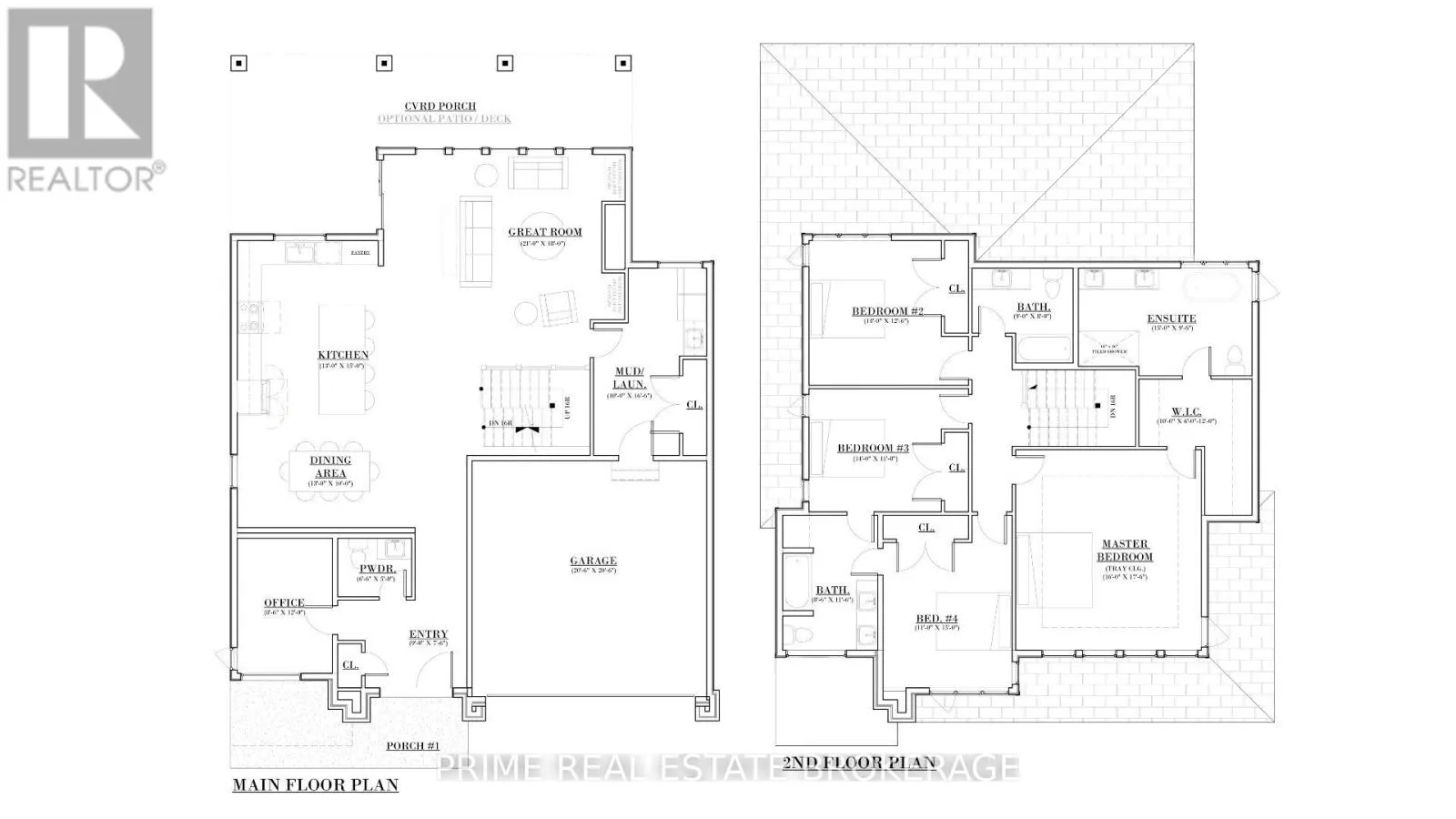
Room Layout

Bathroom
Second level
4.57 m x 2.9 m
Bathroom
Second level
3.05 m x 1.83 m
Bathroom
Second level
2.74 m x 2.44 m
Primary Bedroom
Second level
4.88 m x 5.33 m
Bedroom 2
Second level
4.27 m x 3.81 m
Bedroom 3
Second level
2.74 m x 2.44 m
Bedroom 4
Second level
4.27 m x 3.35 m
Office
Main level
2.59 m x 3.66 m
Dining room
Main level
3.96 m x 4.57 m
Kitchen
Main level
3.96 m x 3.05 m
Great room
Main level
3.35 m x 4.57 m
Laundry room
Main level
1.98 m x 1.52 m

Location

Learn more about this property
Listing provided by:
PRIME REAL ESTATE BROKERAGE
MLS® number:
X12761266
Agent:
Justin Konikow
*Indicates required field
Name is required
Email is required
Please enter a valid phone number (e.g., 416-111-1111).

Street Spotlight - For sale