7 - 1291 Matheson Boulevard E, Mississauga, Ontario L4W 1R1

Listed for:
$2,300,000
0 beds
1 baths
Listed 66 days ago
Warehouse for rent: 7 - 1291 Matheson Boulevard E, Mississauga, Ontario L4W 1R1

View all 20 photos

Learn more about this property
Listing provided by:
JDL REALTY INC.
MLS® number:
W12344742
Agent:
Sandy Liu
*Indicates required field
Name is required
Email is required
Please enter a valid phone number (e.g., 416-111-1111).

About

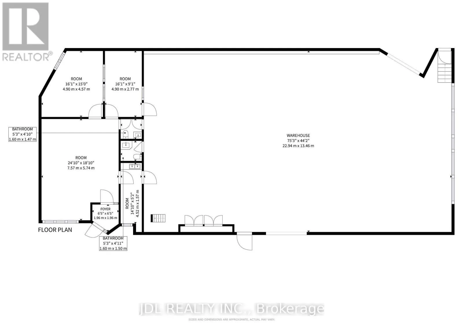
Cross Streets: Matheson BLVD E / Dixie Rd. ** Directions: Go Direct. Please check out the 3D virtual link. Unlock Unparalleled Efficiency and Convenience with this Well-Positioned Industrial Condominium Unit with LOW condo fee, featuring with Two Loading Docks, One Showroom, Two offices and Two washrooms. Locale In Central Mississauga: Excellent Access To Hwy 401, Public Transit, Pearson Airport And Major Roads. Vibrant Industrial Area With Numerous Amenities Within Walking Distance! (See broker's remarks for permitted use) (id:27476)

Property Highlights

MLS® Number
W12344742
Type
Industrial
Community Name
Northeast
Land Size
Unit=35 x 150 FT

Building

Building Type
Warehouse
Square Footage
4542 sqft
Bathrooms Total
1
Fireplace Present
No
Basement Type
Basement Features
Building Heating Type
Forced air
Heating Fuel
Natural gas
Building Cooling Type
Fully air conditioned

Utilities

Water
Municipal water

Location

Community Spotlight: Homes For sale in Your Neighborhood