Lot 3-r - 1710 Carrington Road, Mississauga, Ontario L5M 2K2

Listed for:
$599,980
0 beds
0 baths
Listed 32 days ago
Lot 3-r - 1710 Carrington Road, Mississauga, Ontario L5M 2K2

View all 6 photos

Learn more about this property
Listing provided by:
SUTTON GROUP - SUMMIT REALTY INC.
MLS® number:
W12524742
Agent:
Bill Makris
*Indicates required field
Name is required
Email is required
Please enter a valid phone number (e.g., 416-111-1111).

About

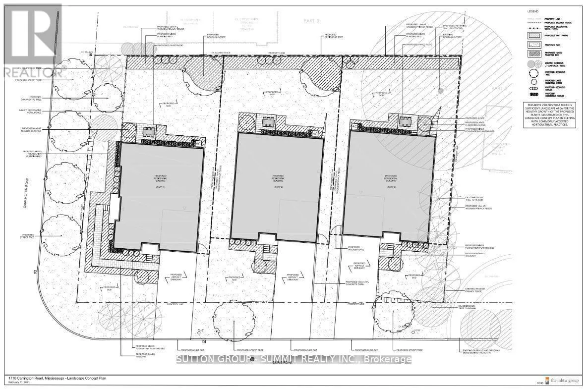
CARRINGTON/DURIE Attention All Builders and investors, this Executive 30-by-125-foot lot (Severed Lot) is in the Prestigious Area Of East Credit. Build Your Dream Home. Short Walk To Streetsville, Restaurants, And Shops.One of six approved 30 ft semi lots as it meets the new Mississauga city bylaws. (id:27476)

Property Highlights

MLS® Number
W12524742
Type
Vacant Land
Community Name
East Credit
Land Size
30 x 125 FT

Building

Fireplace Present
No
Basement Type
Basement Features
Building Heating Type
Heating Fuel
Building Cooling Type

Location