Lot 3 - 1710 Carrington Road, Mississauga, Ontario L5M 2K2

Listed for:
$1,198,900
0 beds
0 baths
Listed 32 days ago
Lot 3 - 1710 Carrington Road, Mississauga, Ontario L5M 2K2

View all 6 photos

Learn more about this property
Listing provided by:
SUTTON GROUP - SUMMIT REALTY INC.
MLS® number:
W12524746
Agent:
Bill Makris
*Indicates required field
Name is required
Email is required
Please enter a valid phone number (e.g., 416-111-1111).

About

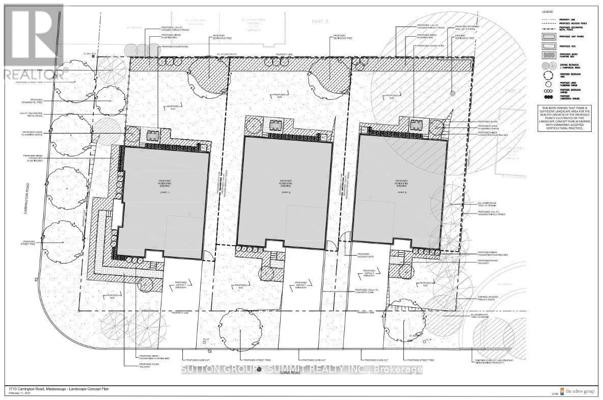
CARRINGTON/DURIE Attention All Builders and investors, this Executive 60-by-125-foot lot (Severed Lot) is in the Prestigious Area Of East Credit. Build Your Dream Home. Short Walk To Streetsville, Restaurants, And Shops.It has also been approved for 2-30 ft semi lots as it meets the new Mississauga city bbylaws. (id:27476)

Property Highlights

MLS® Number
W12524746
Type
Vacant Land
Community Name
East Credit
Land Size
60 x 125 FT

Building

Square Footage
0 - 699 sqft
Fireplace Present
No
Basement Type
Basement Features
Building Heating Type
Heating Fuel
Building Cooling Type

Location