100 Clayton Street, Mitchell, Ontario N0K 1N0

Listed for:
$599,000
2 beds
2 baths
Listed 56 days ago
House for rent: 100 Clayton Street, Mitchell, Ontario N0K 1N0

View all 19 photos

About

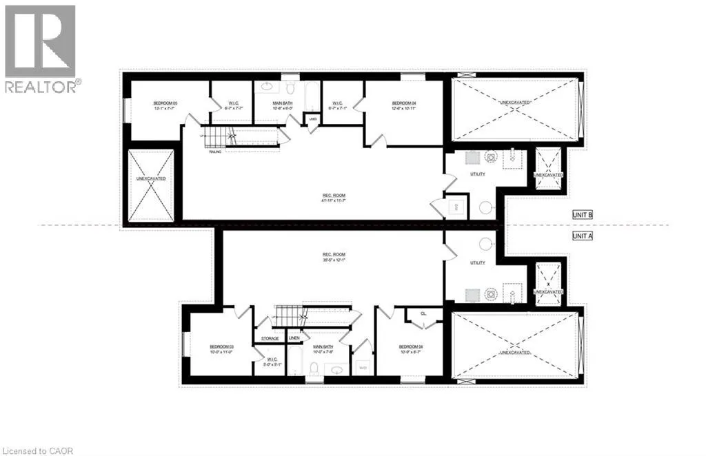
HWY 8 NORTH TO MITCHELL. TURN RIGHT ONTO NAPIER AND RIGHT ONTO CLAYTON. To Be Built-Discover the perfect blend of comfort and style in this brand-new semi-detached bungalow in the heart of Mitchell. This beautifully crafted 1,200 sq. ft. home by Alpine Homes showcases timeless stone and board-and-batten exterior detailing, complemented by an extended double-car asphalt driveway. A green alley separates the semis, offering enhanced privacy. Inside, the thoughtfully designed layout features 2 beds and 2 baths, ideal for comfortable everyday living and entertaining. The professionally designed kitchen includes quartz countertops, under-cabinet lighting, an expansive 10 ft island, and a walk-in pantry for added storage. The open-concept main living area is highlighted by soaring 10½ ft tray ceilings, elegant 8 ft doors, oversized windows, and engineered hardwood flooring throughout. The spacious primary bedroom offers a walk-in closet and a spa-inspired 4-piece ensuite. Convenient laundry and a 4-piece main bath complete the level. The unfinished basement provides endless future potential with 9 ft ceilings, oversized windows, and a 3-piece rough-in, making it ideal for a rec room and up to two additional bedrooms. Meticulously designed with high-end finishes and attention to detail, this home offers modern bungalow living in a welcoming community. A rare opportunity to own a brand-new, thoughtfully designed home in Mitchell. Optional appliance package available. Photos are of similar models. (id:27476)

Property Highlights

MLS® Number
40801844
Type
Single Family
Ownership Type
Freehold
Land Size
under 1/2 acre
Parking Space Total
3

Building

Building Type
House
Storeys
1.00
Square Footage
1200 sqft
Bathrooms Total
2
Bedrooms Above Ground
2
Bedrooms Total
2
Amenities
Golf Nearby, Park
Exterior Finish
Stone
Fireplace Present
No
Basement Type
Full (Unfinished)
Basement Features
Building Heating Type
Forced air
Heating Fuel
Natural gas
Building Cooling Type
Central air conditioning

Utilities

Water
Municipal water
Utility Sewer
Municipal sewage system

Room Layout

Laundry room
Main level
6'4'' x 5'7''
3pc Bathroom
Main level
5'1'' x 8'1''
Full bathroom
Main level
9'1'' x 8'1''
Primary Bedroom
Main level
14'0'' x 11'1''
Living room
Main level
12'4'' x 13'0''
Dining room
Main level
6'8'' x 13'0''
Kitchen
Main level
13'0'' x 13'0''
Bedroom
Main level
10'1'' x 9'2''
Foyer
Main level
4'8'' x 7'4''

Location

Learn more about this property
Listing provided by:
RE/MAX TWIN CITY REALTY INC.
MLS® number:
40801844
Agent:
John Adrian Doci-buia
*Indicates required field
Name is required
Email is required
Please enter a valid phone number (e.g., 416-111-1111).