501 - 185 Deerfield Road, Newmarket, Ontario L3Y 0G7

Listed for:
$2,150
2 beds
2 baths
Listed 7 days ago
Apartment for rent: 501 - 185 Deerfield Road, Newmarket, Ontario L3Y 0G7

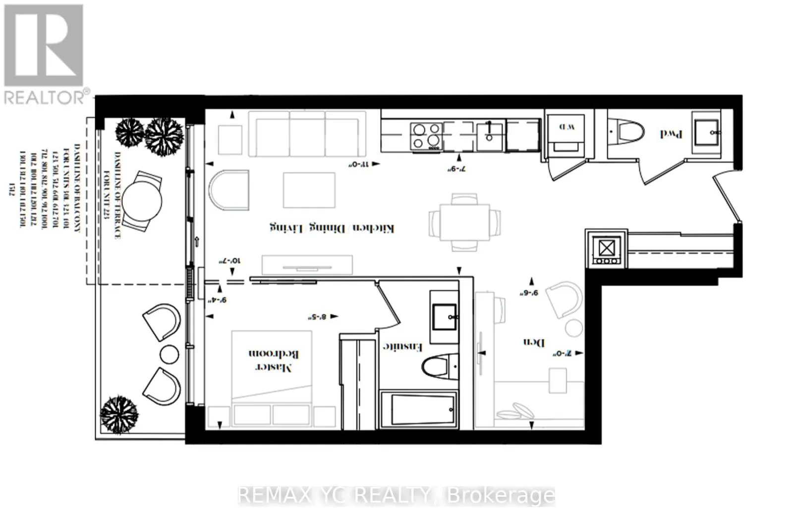
View all 14 photos

About

Yonge / Davis Welcome to this elegant, 1-year-old 1+Den, 2 Bath suite offering 643 sq. ft. of thoughtfully designed living space plus east-facing balcony and one parking spot included. This bright and functional open-concept layout features 9 ft smooth ceilings, floor-to-ceiling windows, and luxury vinyl flooring throughout. The modern kitchen is equipped with stainless steel appliances, sleek quartz countertops, custom-designed cabinetry, and a ceramic backsplash - perfect for everyday living or entertaining. The spacious den can be used as a second bedroom or home office, offering great flexibility. Take advantage of The Davis's green building design, advanced security, and energy-efficient technology. Conveniently located just steps to Upper Canada Mall, Newmarket GO Station, public transit, shops, restaurants, parks, and medical facilities, with easy access to Hwy 404 and 400. (id:27476)

Property Highlights

MLS® Number
N12813140
Type
Single Family
Community Name
Central Newmarket
Ownership Type
Condominium/Strata
Parking Space Total
1

Building

Building Type
Apartment
Square Footage
600 - 699 sqft
Bathrooms Total
2
Bedrooms Above Ground
1
Bedrooms Total
2
Exterior Finish
Concrete
Fireplace Present
No
Basement Type
None
Basement Features
Building Heating Type
Heat Pump, Not known
Heating Fuel
Electric
Building Cooling Type
Central air conditioning

Location

Learn more about this property
Listing provided by:
REMAX YC REALTY
MLS® number:
N12813140
Agent:
Hyun Ji Kim
*Indicates required field
Name is required
Email is required
Please enter a valid phone number (e.g., 416-111-1111).

Street Spotlight - For rent