200 - 615 Davis Drive, Newmarket, Ontario L3Y 2X3

Listed for:
$10
0 beds
0 baths
Listed 3 days ago
Offices for rent: 200 - 615 Davis Drive, Newmarket, Ontario L3Y 2X3

View all 2 photos

About

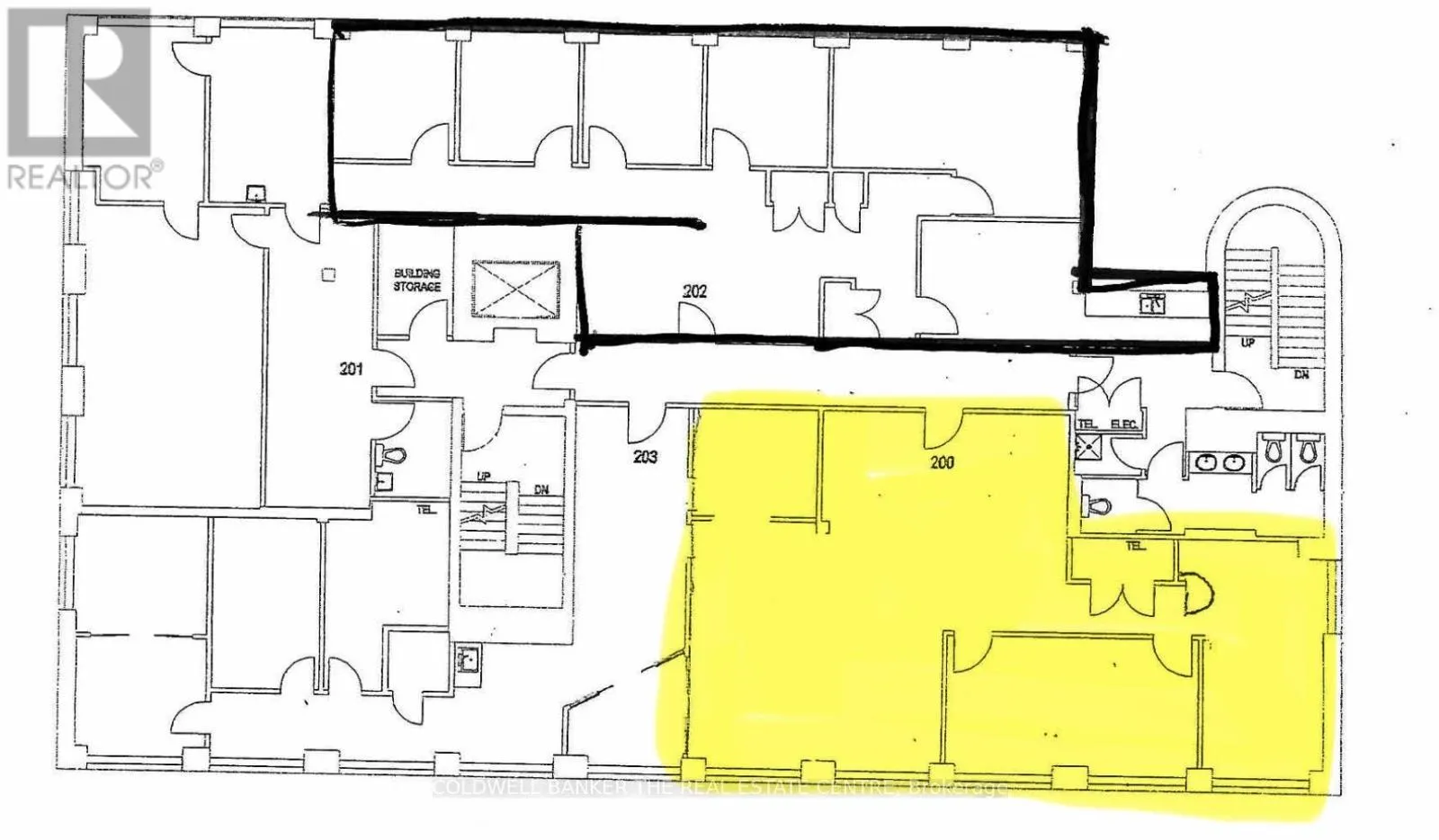
Cross Streets: Davis Drive/Leslie Street. ** Directions: Davis Drive Across from Hospital. 1497 Sq.Ft. Prime Professional Office Building With High Exposure Located Directly Across From Southlake Regional Health Centre And MedicalArts Building On Same Block. Would Suit Medical And Professionals Uses. Steps To Rapid Transit, Go Station. Well Maintained Building With Plenty Of Parking. (id:27476)

Property Highlights

MLS® Number
N12916486
Type
Office
Community Name
Huron Heights-Leslie Valley
Land Size
Unit=1497 x 1497 FT ; 1497 Sq Ft
Parking Space Total
3

Building

Building Type
Offices
Square Footage
1497 sqft
Amenities
Highway, Public Transit
Fireplace Present
No
Basement Type
Basement Features
Building Heating Type
Hot water radiator heat
Heating Fuel
Natural gas
Building Cooling Type
Fully air conditioned

Utilities

Water
Municipal water

Location

Learn more about this property
Listing provided by:
COLDWELL BANKER THE REAL ESTATE CENTRE
MLS® number:
N12916486
Agent:
Joshua A. Campbell
*Indicates required field
Name is required
Email is required
Please enter a valid phone number (e.g., 416-111-1111).

Street Spotlight - For lease