206 Merritt Court, North Middlesex, Ontario N0M 2K0

Listed for:
$737,500
2 beds
2 baths
Listed 175 days ago
House for rent: 206 Merritt Court, North Middlesex, Ontario N0M 2K0

View all 3 photos

About

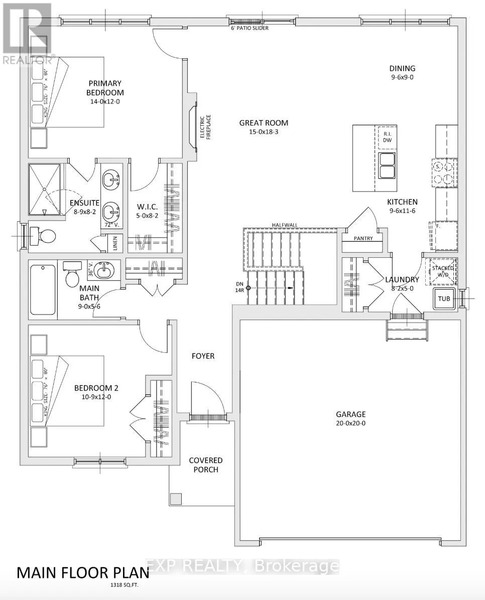
Cross Streets: HASTINGS ST. ** Directions: Turn right onto Anna St, Turn right onto Eagle St, property will be on the right. Introducing the newest bungalow by XO Homes, offering 1,318 sq. ft. of thoughtfully designed main-floor living. This home combines comfort, convenience, and contemporary style - perfect for anyone looking to simplify without compromise.Step inside to find an inviting open-concept layout that flows seamlessly from the kitchen to the dining area and great room. The kitchen features a centre island, walk-in pantry, and direct access to the mudroom and double car garage - a practical touch for unloading groceries with ease.The primary bedroom is tucked privately at the back of the home and includes a spacious 3-piece ensuite with a walk-in shower, double vanity, and linen closet for added storage. A second bedroom sits at the front of the home, offering the perfect space for guests or a bright home office with a view. Another full bathroom completes this well-designed layout.Built with XO Homes' signature quality and attention to detail, this bungalow perfectly balances functionality and style - a home you'll love for years to come. A limited number of ravine lots remain, offering added privacy and natural views. Please note, some lots are subject to premiums based on location and size. (id:27476)

Property Highlights

MLS® Number
X12477600
Type
Single Family
Community Name
Parkhill
Ownership Type
Freehold
Land Size
50 x 108 Acre|1/2 - 1.99 acres
Parking Space Total
6

Building

Building Type
House
Storeys
1.00
Square Footage
1100 - 1500 sqft
Bathrooms Total
2
Bedrooms Above Ground
2
Bedrooms Total
2
Amenities
Fireplace(s)
Exterior Finish
Brick, Vinyl siding
Fireplace Present
Yes
Basement Type
Full (Unfinished)
Basement Features
Building Heating Type
Forced air
Heating Fuel
Natural gas
Building Cooling Type
Central air conditioning

Utilities

Water
Municipal water
Utility Sewer
Sanitary sewer

Room Layout

Bedroom
Main level
3.28 m x 3.66 m
Bathroom
Main level
2.74 m x 1.68 m
Primary Bedroom
Main level
4.27 m x 3.66 m
Bathroom
Main level
2.67 m x 2.49 m
Great room
Main level
4.57 m x 5.56 m
Dining room
Main level
2.9 m x 2.74 m
Kitchen
Main level
2.9 m x 3.51 m
Laundry room
Main level
2.49 m x 1.52 m

Location

Learn more about this property
Listing provided by:
EXP REALTY
MLS® number:
X12477600
Agent:
Paisley Smith
*Indicates required field
Name is required
Email is required
Please enter a valid phone number (e.g., 416-111-1111).

Street Spotlight - For sale