210 Merritt Court, North Middlesex, Ontario N0M 2K0

Listed for:
$814,900
3 beds
3 baths
Listed 58 days ago
House for rent: 210 Merritt Court, North Middlesex, Ontario N0M 2K0

View all 3 photos

About

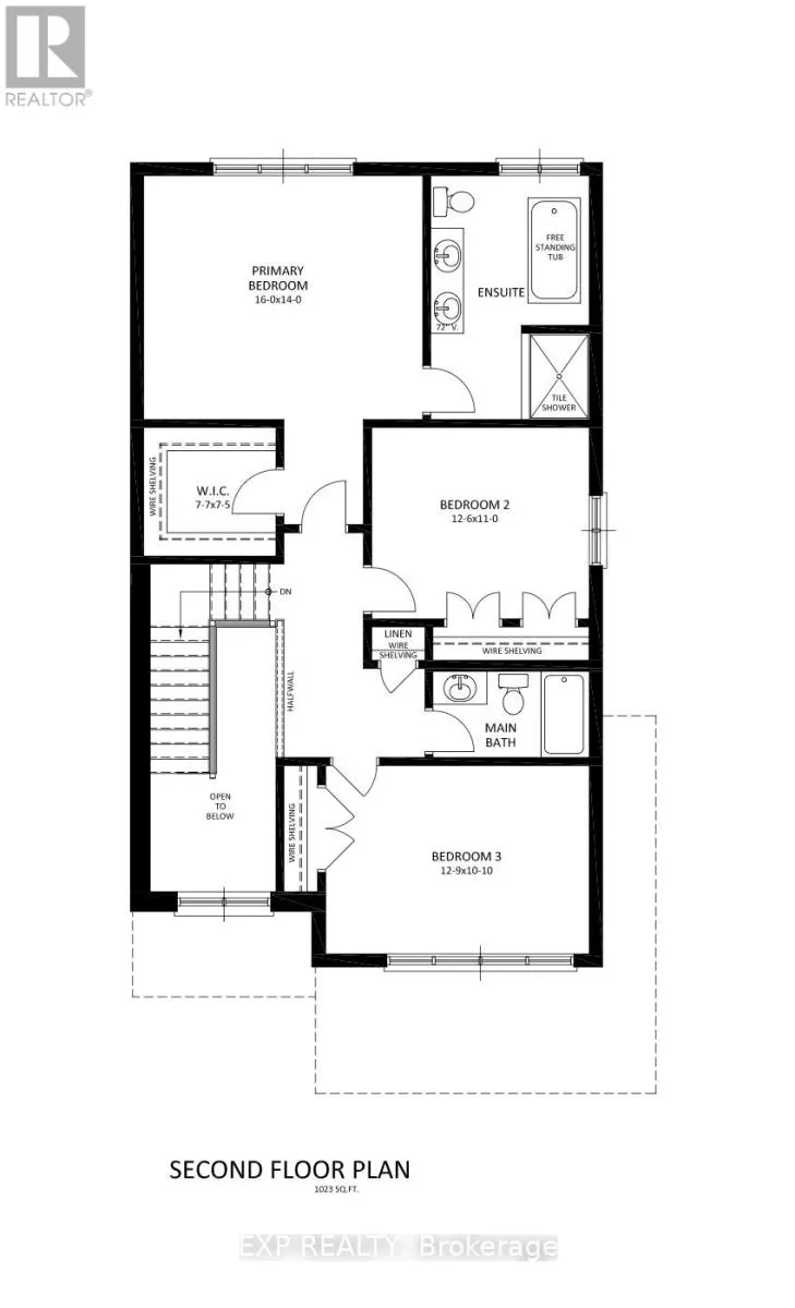
Cross Streets: HASTINGS ST. ** Directions: Turn right onto Anna St, Turn right onto Eagle St, property will be on the right. Welcome to Merritt Estates, where your dream home awaits in the beautiful community of Parkhill! this two-storey Xistence floor plan spans 1,995 sq. ft. and is a blank canvas, ready for your custom touches to make it truly yours. Step inside to discover a bright and airy open entrance foyer that sets the stage for the elegance that lies beyond. The main level boasts a stunning open-concept design that flows seamlessly from the spacious great room to the gourmet kitchen. Here, you'll find sleek quartz countertops, an island perfect for casual dining or entertaining, and sliding glass patio doors that lead directly to your private backyard oasis. Upstairs, the second level offers three generous bedrooms, including a luxurious primary suite complete with a five-piece ensuite bathroom and a large walk-in closetyour personal retreat at the end of the day. Also on this level is a convenient laundry room, making everyday chores a breeze. With XO Homes, every detail of your home can be tailored to your preferences. Choose from a variety of floor plans, each fully customizable to meet your unique needs. Don't miss this opportunity to live in a community that offers the perfect blend of tranquility and modern convenience. Contact us for more information on available lots, models, and our full builder package. Come fall in love with Merritt Estates and build the home you've always dreamed of! (id:27476)

Property Highlights

MLS® Number
X12749052
Type
Single Family
Community Name
Parkhill
Ownership Type
Freehold
Land Size
53 x 151 FT|under 1/2 acre
Parking Space Total
6

Building

Building Type
House
Storeys
2.00
Square Footage
1500 - 2000 sqft
Bathrooms Total
3
Bedrooms Above Ground
3
Bedrooms Total
3
Exterior Finish
Brick, Vinyl siding
Fireplace Present
Yes
Basement Type
Full (Unfinished)
Basement Features
Building Heating Type
Forced air
Heating Fuel
Natural gas
Building Cooling Type
Central air conditioning

Utilities

Water
Municipal water
Utility Sewer
Sanitary sewer

Room Layout

Primary Bedroom
Second level
4.88 m x 4.27 m
Bedroom 2
Second level
3.81 m x 3.35 m
Bedroom 3
Second level
3.89 m x 3.3 m
Great room
Main level
4.75 m x 6.53 m
Dining room
Main level
2.59 m x 2.84 m
Kitchen
Main level
2.59 m x 3.66 m

Location

Learn more about this property
Listing provided by:
EXP REALTY
MLS® number:
X12749052
Agent:
Paisley Smith
*Indicates required field
Name is required
Email is required
Please enter a valid phone number (e.g., 416-111-1111).