264 George Street, North Middlesex, Ontario N0M 2K0

Listed for:
$699,700
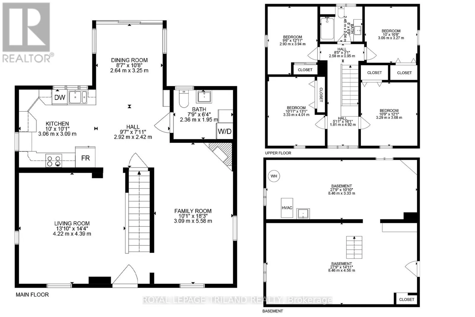
4 beds
2 baths
Listed 53 days ago
House for rent: 264 George Street, North Middlesex, Ontario N0M 2K0

View all 50 photos

Learn more about this property
Listing provided by:
ROYAL LEPAGE TRILAND REALTY
MLS® number:
X12481716
Agent:
Mike Sloan
*Indicates required field
Name is required
Email is required
Please enter a valid phone number (e.g., 416-111-1111).

About

Cross Streets: Between William St E and Anna St. ** Directions: MAP to 264 George St, Parkhill, ON: Tucked away well off the main highway in rural paradise, but still close everything you need on the Main Strip, this is the perfect location on a double wide lot!. WELCOME TO YOUR OWN PERSONAL RESORT IN SMALL TOWN ONTARIO! This Parkhill gem has been meticulously maintained for over 40 years by the same owners & is absolutely loaded with premium amenities providing a package that is unbeatable in this price range! Nestled into the most desirable portion of Parkhill's quiet neighborhoods on a DOUBLE WIDTH lot with a fully fenced yard that includes a massive lawn space (ideal for a good sized ice rink, active kids, grandkids, or dogs, etc.) bordered by mature trees & also the spa-like pool setting with pergola and hot tub deck surrounded by flagstone. It's like 2 backyards in one! This premium location & with its oversized lot is surrounded by other large parcels fostering a rural feel but still being just steps away from all of Parkhill's convenient amenities. In addition to the exceptional landscaping & breathtaking setting, this stately & stunning century home doesn't miss a beat, from the 2022 kitchen & main level laundry/bathroom to the four corner bedrooms with the full bath upstairs. The list of upgrades is extensive: roof was brand new summer 2025, new pool liner, hot tub, & fence in 2023, & the 10-ft ceilings on the main level are in immaculate condition surrounded by updated thermal pane windows & hardwood flooring & it's all forced air gas heated & central air conditioned. This iconic property also offers a lot of storage space, with a full basement accessible by a separate entrance, a nice large storage shed, & a fair amount of space in the enclosed storage room at the back of the carport, which provides two covered sparking spaces in addition to the ample parking in the driveway. This carport could be easily walled-in to create a 2 car garage. Whether it's for entertaining a growing family or retiring in a quiet small town close to one of Canada's best beaches in Grand Bend just a few minutes up the road, if you can afford this level of luxury, you cannot afford to pass this up. This is a must see! (id:27476)

Property Highlights

MLS® Number
X12481716
Type
Single Family
Community Name
Parkhill
Ownership Type
Freehold
Land Size
123 x 125 FT
Parking Space Total
8

Building

Building Type
House
Storeys
2.00
Square Footage
1500 - 2000 sqft
Bathrooms Total
2
Bedrooms Above Ground
4
Bedrooms Total
4
Amenities
Fireplace(s) Schools, Beach
Exterior Finish
Brick
Fireplace Present
Yes
Basement Type
Full
Basement Features
Separate entrance
Building Heating Type
Forced air
Heating Fuel
Natural gas
Building Cooling Type
Central air conditioning

Utilities

Water
Municipal water
Utility Sewer
Sanitary sewer

Location

Community Spotlight: Homes For sale in Your Neighborhood