40 Aberdeen Avenue, Northern Bruce Peninsula, Ontario N0H 2T0

Listed for:
$735,000
3 beds
1 baths
Listed 47 days ago
House for rent: 40 Aberdeen Avenue, Northern Bruce Peninsula, Ontario N0H 2T0

View all 41 photos

About

Cross Streets: Widgeon Cove Rd & Aberdeen Ave. ** Directions: Head North on Hwy 6, Turn Left on Pike Bay Rd, Turn Left to stay on Pike Bay Rd, Turn Right on Widgeon Cove Rd, Turn Left on Aberdeen Ave., Look for Signs. Welcome to 40 Aberdeen Avenue a beautifully updated 3-bedroom, 1-bathroom home-away-from-home tucked along the north shore of Pike Bay. Both the property and cottage feature many new updates including but not limited to; new septic system (2025), new steel roof (2019), upgraded insulation (ceiling & walls in 2019, crawl space fully insulated 2026), professional Armour Stone landscaping (2020), new kitchen island and countertops (2024), updated bathroom (2024), refinished floors (2018 on 2nd floor & 2024 for main floor), and much more! The waterfront is an entertainers dream, featuring a Tiki Bar (with power and water), large flagstone fire pit, long wooden dock, private boat launch, water-side deck, and even a sand pit for the kids! Located near the end of a quiet road this private retreat offers a blend of comfort, character, and thoughtful upgrades! The perfect place for relaxing getaways and memory-filled adventures. Inside the chalet / A-frame style layout features a cozy open-concept living area anchored by a beautiful stone fireplace and sweeping views of Lake Huron. Upstairs has spacious bedrooms featuring refinished floors, shiplap walls, and live-edge shelving, creating a warm and rustic feel with modern style. The property is well treed offering lots of privacy! The cottage is being offered fully furnished and move-in ready, here is your chance to enjoy the best of Bruce Peninsula! (id:27476)

Property Highlights

MLS® Number
X12950796
Type
Single Family
Community Name
Northern Bruce Peninsula
Ownership Type
Freehold
Land Size
76 x 158.7 FT
Parking Space Total
5

Building

Building Type
House
Square Footage
700 - 1100 sqft
Bathrooms Total
1
Bedrooms Above Ground
3
Bedrooms Total
3
Exterior Finish
Wood
Fireplace Present
Yes
Basement Type
None
Basement Features
Building Heating Type
Other
Heating Fuel
Building Cooling Type
None

Utilities

Water
Drilled Well
Utility Sewer
Septic System

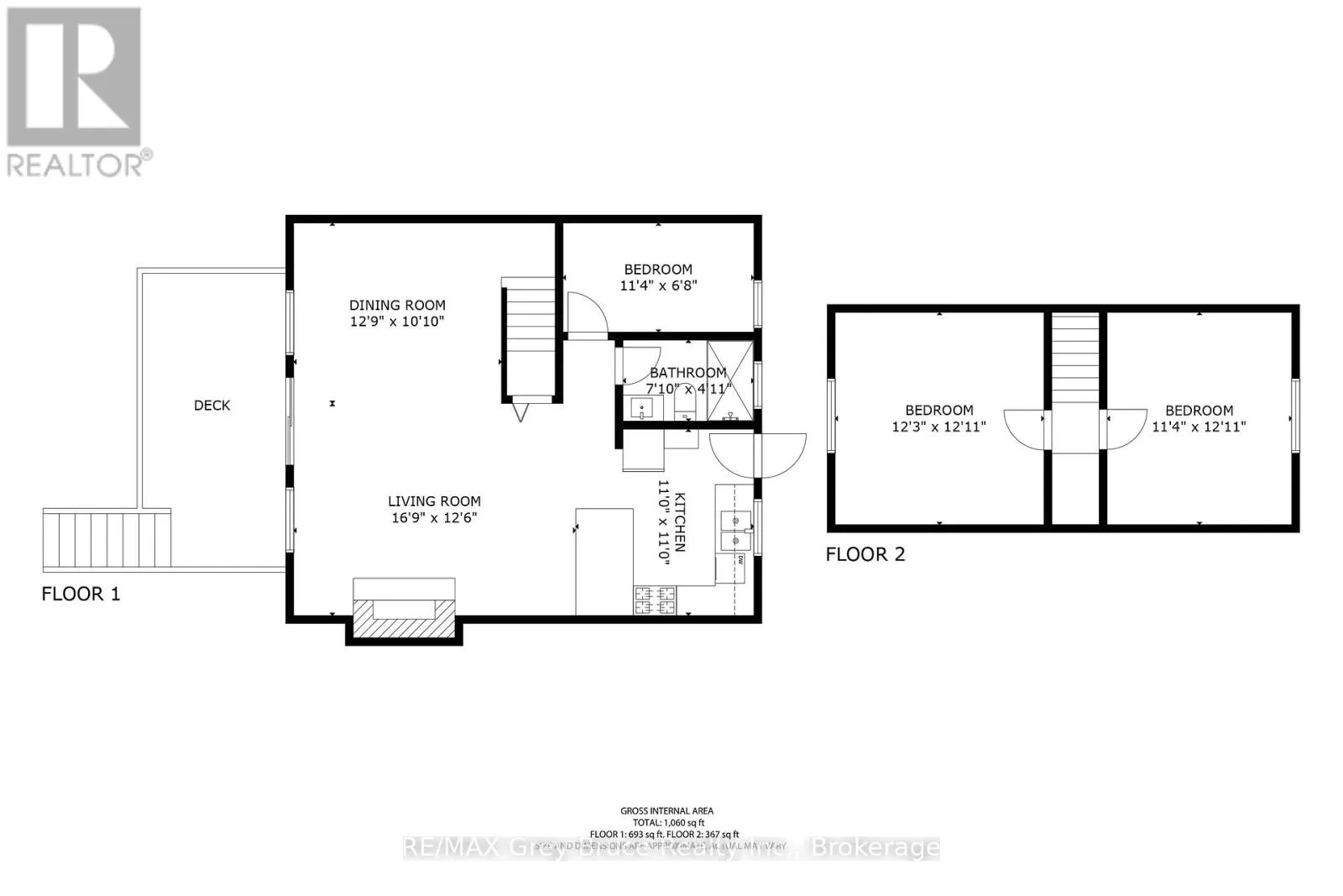
Room Layout

Bedroom 2
Second level
3.73 m x 3.93 m
Bedroom 3
Second level
3.45 m x 3.93 m
Living room
Main level
5.1 m x 3.81 m
Dining room
Main level
3.88 m x 3.3 m
Kitchen
Main level
3.35 m x 3.35 m
Bedroom
Main level
3.45 m x 2.03 m
Bathroom
Main level
2.38 m x 1.49 m

Location

Learn more about this property
Listing provided by:
RE/MAX Grey Bruce Realty Inc.
MLS® number:
X12950796
Agent:
Dylan Dolson
*Indicates required field
Name is required
Email is required
Please enter a valid phone number (e.g., 416-111-1111).

Community Spotlight: Homes For sale in Your Neighborhood