6 Church Street W, Norwich, Ontario N0J 1C0

Listed for:
$159,999
3 beds
2 baths
Listed 248 days ago
House for rent: 6 Church Street W, Norwich, Ontario N0J 1C0

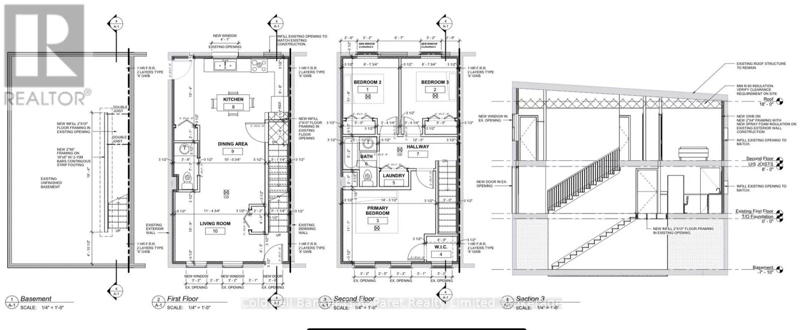
View all 11 photos

About

Cross Streets: Main St N and Church st W. ** Directions: Take highway 59 into Burgessville property is on North side just before the corner of main st N and church st W. Investor & Renovators Dream! This attached home in the heart of Burgessville has been completely gutted, offering a blank slate for your vision. Whether you're an investor looking to build instant equity or a buyer ready to create your dream home, this property presents an incredible opportunity. With the right plan and execution, the potential here is massive. Properties like this, once completed, can yield substantial returns either as a flip, a rental, or an affordable entry into homeownership. Opportunities like this don't come often. Take advantage of the chance to bring this property back to life! Property being sold "As Is". No warranties by Sellers. (id:27476)

Property Highlights

MLS® Number
X12250385
Type
Single Family
Community Name
Burgessville
Ownership Type
Freehold
Land Size
27.6 x 48 FT

Building

Building Type
House
Storeys
2.00
Square Footage
1100 - 1500 sqft
Bathrooms Total
2
Bedrooms Above Ground
3
Bedrooms Total
3
Exterior Finish
Vinyl siding
Fireplace Present
No
Basement Type
Full (Unfinished)
Basement Features
Building Heating Type
Other
Heating Fuel
Natural gas
Building Cooling Type
None

Utilities

Water
Shared Well
Utility Sewer
Septic System

Room Layout

Primary Bedroom
Second level
8.5344 m x 5.6388 m
Great room
Main level
8.5344 m x 5.6388 m

Location

Learn more about this property
Listing provided by:
Coldwell Banker G.R. Paret Realty Limited Brokerage
MLS® number:
X12250385
Agent:
Chris Van Kasteren
*Indicates required field
Name is required
Email is required
Please enter a valid phone number (e.g., 416-111-1111).