124687 Mall Road, Norwich, Ontario N4G 2T2

Listed for:
$689,900
3 beds
1 baths
Listed 5 days ago
House for rent: 124687 Mall Road, Norwich, Ontario N4G 2T2

View all 40 photos

About

Cross Streets: Simcoe Street. ** Directions: Broadway St S; turn left onto Oxford St (turns onto Simcoe St); turn left onto Mall Rd. Welcome to 124687 Mall Road. Located in a desirable area on the outskirts of Tillsonburg, this charming brick bungalow offers the perfect blend of convenience and privacy. Set on a spacious1/2 acre lot and backing onto open fields behind the cedars, you'll enjoy peaceful views right from your backyard. Situated behind the Norfolk Mall and along a bus route, the location is ideal for easy access to amenities. This home features 3 bedrooms and a functional layout highlighted by a large 3-season sunroom located at the front entrance an inviting space to relax and welcome guests. The finished rec room provides additional living and entertaining space. The property is serviced by municipal water, septic system. Additional features include an exterior electrical hookup at the rear ready for a hot tub, hydro in the shed, and a well in the backyard however, it has not been used by the Seller and its condition is unknown. (id:27476)

Property Highlights

MLS® Number
X12951302
Type
Single Family
Community Name
Rural Norwich
Ownership Type
Freehold
Land Size
80 x 280 FT ; 80 X 280 (.51 ACRES)
Parking Space Total
7

Building

Building Type
House
Storeys
1.00
Square Footage
1100 - 1500 sqft
Bathrooms Total
1
Bedrooms Above Ground
3
Bedrooms Total
3
Amenities
Fireplace(s) Hospital, Place of Worship, Public Transit
Exterior Finish
Brick
Fireplace Present
Yes
Basement Type
Partial (Partially finished)
Basement Features
Building Heating Type
Forced air
Heating Fuel
Natural gas
Building Cooling Type
Central air conditioning

Utilities

Water
Municipal water
Utility Sewer
Septic System

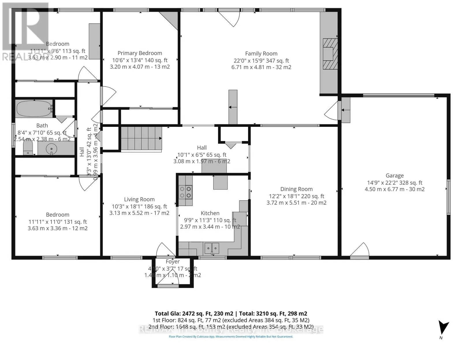
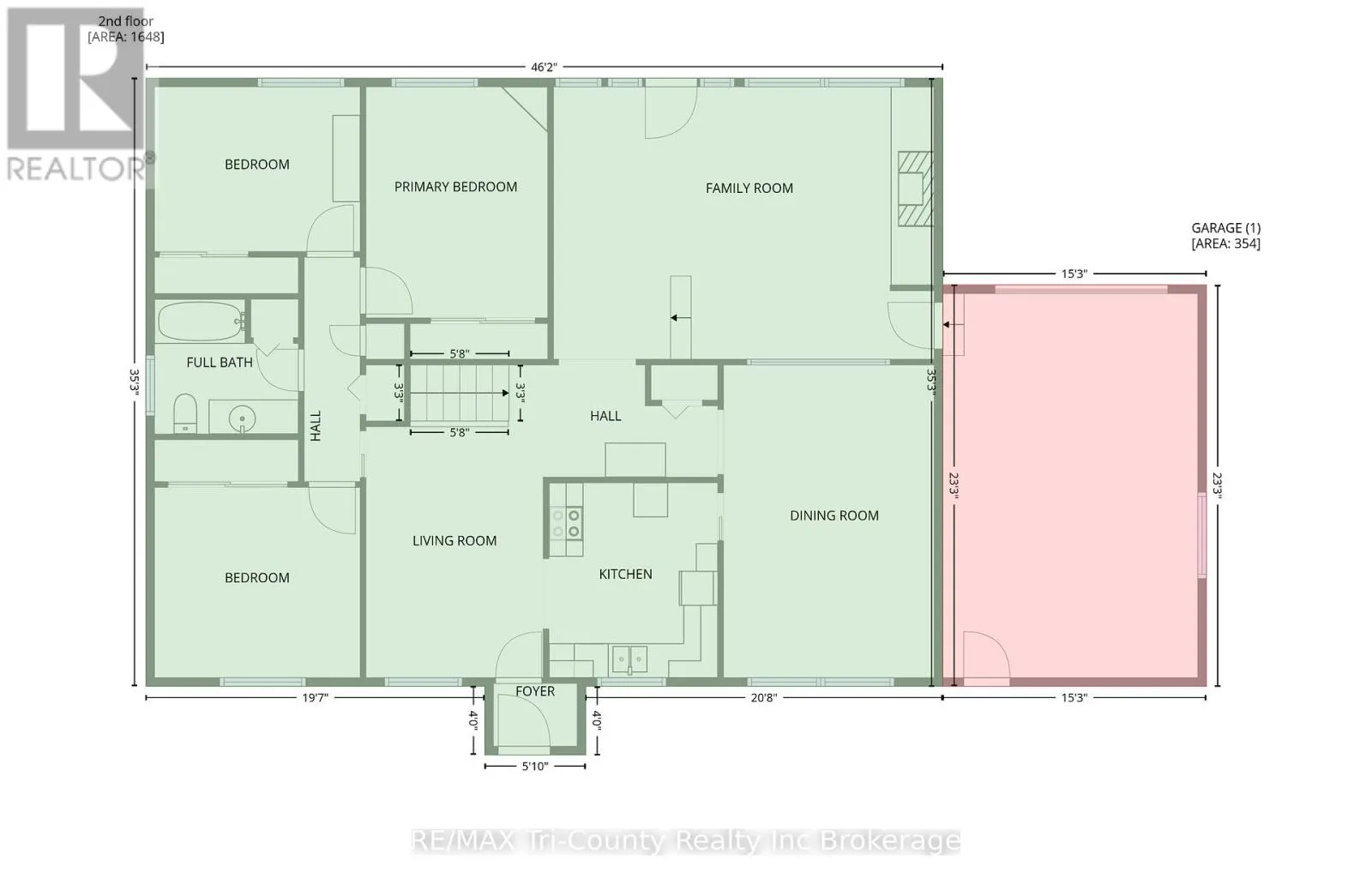
Room Layout

Recreational, Games room
Basement
13.53 m x 5.24 m
Utility room
Basement
6.89 m x 4.8 m
Bathroom
Basement
1.96 m x 1.51 m
Family room
Main level
6.71 m x 4.81 m
Foyer
Main level
1.4 m x 1.1 m
Dining room
Main level
3.72 m x 5.51 m
Kitchen
Main level
2.97 m x 3.44 m
Living room
Main level
3.13 m x 5.52 m
Primary Bedroom
Main level
3.2 m x 4.07 m
Bedroom 2
Main level
3.63 m x 2.9 m
Bedroom 3
Main level
3.63 m x 3.36 m
Bathroom
Main level
2.54 m x 2.38 m

Location

Learn more about this property
Listing provided by:
RE/MAX Tri-County Realty Inc Brokerage
MLS® number:
X12951302
Agent:
Bonnie Mudge
*Indicates required field
Name is required
Email is required
Please enter a valid phone number (e.g., 416-111-1111).

Community Spotlight: Homes For sale in Your Neighborhood