Unit 1 - 201 Woodside Drive, Orillia, Ontario L3V 6T4

Listed for:
$30
0 beds
0 baths
Listed 161 days ago
Unit 1 - 201 Woodside Drive, Orillia, Ontario L3V 6T4

View all 5 photos

About

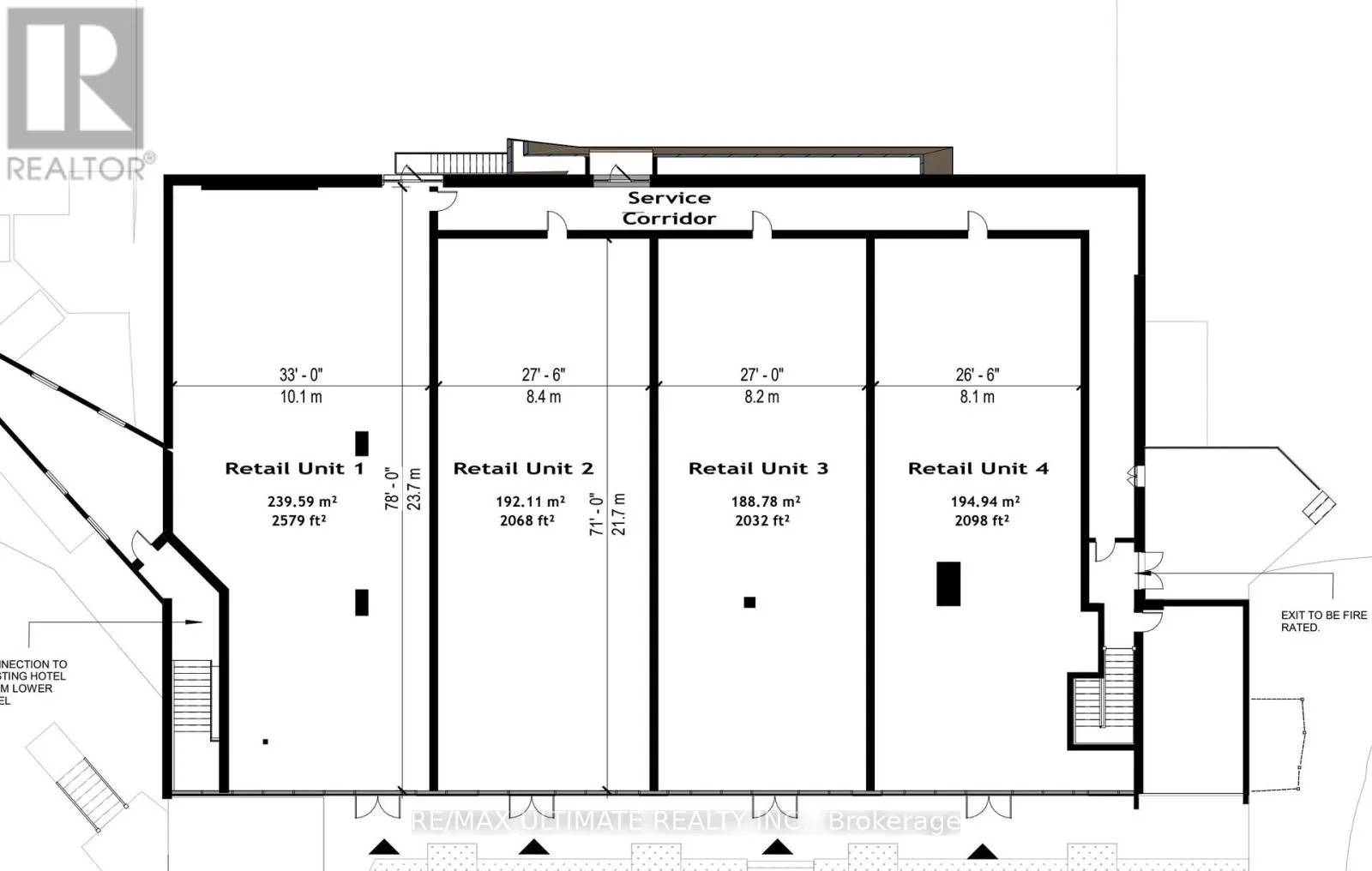
Coldwater Rd W & Westmount Rd N Brand new retail lease opportunity in a high-demand Orillia location at the intersection of Westmount Drive North and Coldwater Road West. Four units are being developed from an existing structure with entirely new infrastructure throughout, offering modern, flexible commercial space. The site is adjacent to a very busy Tim Hortons drive-thru and directly faces the storefront of a high-traffic Shoppers Drug Mart, ensuring excellent visibility and constant exposure to pedestrian and vehicle traffic. Zoned C4, the property allows for a wide range of permitted uses including medical center, pharmacy, dental office, physiotherapy clinic, bakery, daycare, fitness studio, restaurant, retail store, and professional office. Units range from 2,500 to 10,000 sq. ft. with the option to combine spaces for larger requirements. This is a prime opportunity to establish your business in one of Orillia's most visible and active commercial corridors. additional detail attached to the listing. (id:27476)

Property Highlights

MLS® Number
S12525718
Type
Retail
Community Name
Orillia
Land Size
Unit=229 x 952 Acre

Building

Square Footage
2579 sqft
Fireplace Present
No
Basement Type
Basement Features
Building Heating Type
Forced air
Heating Fuel
Natural gas
Building Cooling Type
Fully air conditioned

Utilities

Water
Municipal water

Location

Learn more about this property
Listing provided by:
RE/MAX ULTIMATE REALTY INC.
MLS® number:
S12525718
Agent:
Shailesh Patel
*Indicates required field
Name is required
Email is required
Please enter a valid phone number (e.g., 416-111-1111).

Community Spotlight: Homes For lease in Your Neighborhood