303 - 1435 Celebration Drive, Pickering, Ontario L1W 0C4

Listed for:
$599,000
3 beds
2 baths
Listed 43 days ago
Apartment for rent: 303 - 1435 Celebration Drive, Pickering, Ontario L1W 0C4

View all 18 photos

Learn more about this property
Listing provided by:
SOTHEBY'S INTERNATIONAL REALTY CANADA
MLS® number:
E12509786
Agent:
Andrea Hanak
*Indicates required field
Name is required
Email is required
Please enter a valid phone number (e.g., 416-111-1111).

About

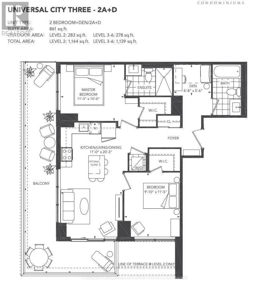
Bayly St. & Liverpool Rd. Welcome to his stunning 2 bed + den, 2-bath southwest corner suite at Universal City 3 - Pickering's hottest new address! It offers 861 sq ft of sun-filled living space plus a massive 278 sq ft wrap-around balcony - that's 1,139 sq ft total! The unit has two walk-in closets. Split bedroom plan and fully enclosed den. Enjoy floor-to-ceiling windows, stylish upgrades, and an open-concept layout that seamlessly blends indoor-outdoor living. Includes parking and locker in a brand-new building with premium amenities: fitness centre, party lounge, rooftop terrace, pool, and 24-hr concierge. Steps to Pickering GO, Pickering Town Centre, restaurants, parks, and the waterfront - everything you need right at your doorstep. An unbeatable below-$600K dream deal offering luxury, lifestyle, and incredible value in one perfect package! All furniture included as well! (id:27476)

Property Highlights

MLS® Number
E12509786
Type
Single Family
Community Name
Bay Ridges
Maintenance Fee
616.34
Ownership Type
Condominium/Strata
Parking Space Total
1

Building

Building Type
Apartment
Square Footage
800 - 899 sqft
Bathrooms Total
2
Bedrooms Above Ground
2
Bedrooms Total
3
Amenities
Storage - Locker
Exterior Finish
Brick, Concrete
Fireplace Present
No
Basement Type
None
Basement Features
Building Heating Type
Forced air
Heating Fuel
Natural gas
Building Cooling Type
Central air conditioning

Location

Street Spotlight - For sale