4239 Lakeshore Road, Plympton-Wyoming, Ontario N0N 1J6

Listed for:
$469,900
2 beds
1 baths
Listed 9 days ago
House for rent: 4239 Lakeshore Road, Plympton-Wyoming, Ontario N0N 1J6

View all 42 photos

Learn more about this property
Listing provided by:
KELLER WILLIAMS LIFESTYLES
MLS® number:
X12528738
Agent:
Shannan Marion
*Indicates required field
Name is required
Email is required
Please enter a valid phone number (e.g., 416-111-1111).

About

Cross Streets: ABERARDER LINE. ** Directions: From Aberarder Ln turn onto Lakeshore Rd. Property is on the right past Patterson Creek. Welcome to this charming 4-season cottage or family home, perfectly situated on nearly an acre surrounded by mature trees and the beauty of nature. Featuring 2 bedrooms and 1 bathroom, this inviting property offers peace and privacy while still being just a short walk to Lake Huron. Enjoy deeded beach access across the road on George Street, ideal for relaxing summer days by the water. Fully renovated in 2015, the home combines cozy cottage character with modern comfort-bright, updated, and move-in ready. The spacious lot provides plenty of room to unwind, garden, or gather around the fire pit under the stars. A detached shed offers extra storage for outdoor equipment or beach gear. Only a 15-minute drive to Sarnia, this property offers the perfect balance of tranquility and convenience. Whether you're seeking a year-round residence or a peaceful getaway, this home delivers an ideal lakeside lifestyle. (id:27476)

Property Highlights

MLS® Number
X12528738
Type
Single Family
Community Name
Plympton Wyoming
Ownership Type
Freehold
Land Size
231.6 x 74 Acre
Parking Space Total
5

Building

Building Type
House
Storeys
1.00
Square Footage
700 - 1100 sqft
Bathrooms Total
1
Bedrooms Above Ground
2
Bedrooms Total
2
Exterior Finish
Wood
Fireplace Present
No
Basement Type
Crawl space
Basement Features
Building Heating Type
Forced air
Heating Fuel
Natural gas
Building Cooling Type
Central air conditioning

Utilities

Water
Municipal water
Utility Sewer
Sanitary sewer

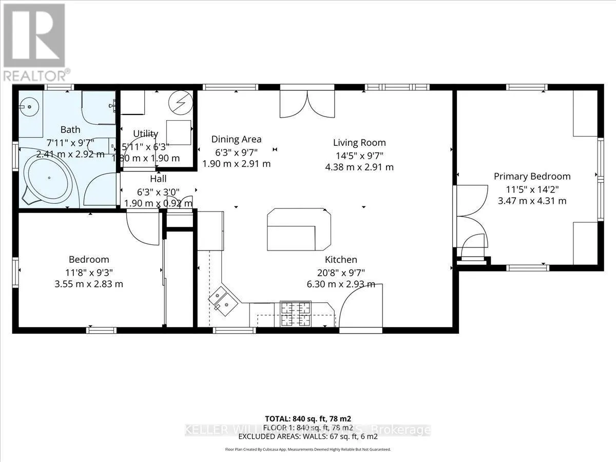
Room Layout

Living room
Main level
4.38 m x 2.91 m
Kitchen
Main level
6.3 m x 2.93 m
Dining room
Main level
1.9 m x 2.91 m
Primary Bedroom
Main level
3.47 m x 4.31 m
Bedroom
Main level
3.55 m x 2.83 m
Laundry room
Main level
1.8 m x 1.9 m

Location