302 - 85 Oneida Crescent, Richmond Hill, Ontario L4B 0H4

Listed for:
$539,000
2 beds
1 baths
Listed 92 days ago
Apartment for rent: 302 - 85 Oneida Crescent, Richmond Hill, Ontario L4B 0H4

View all 42 photos

Learn more about this property
Listing provided by:
ROYAL LEPAGE TERREQUITY REALTY
MLS® number:
N12353030
Agent:
Peter Moghtader
*Indicates required field
Name is required
Email is required
Please enter a valid phone number (e.g., 416-111-1111).

About

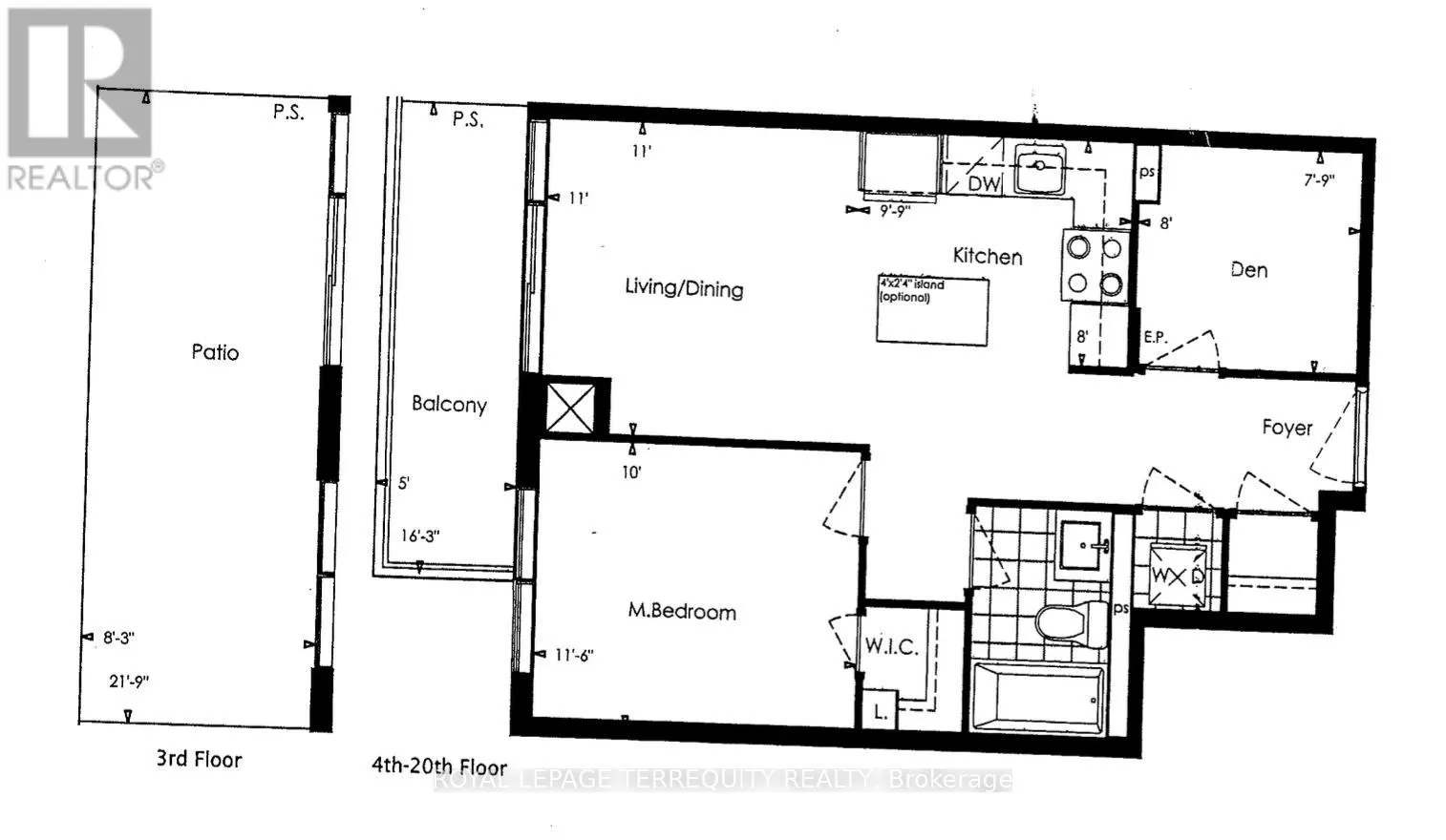
Cross Streets: YONGE AND HWY 7. ** Directions: East of Yonge and North of HWY 7. Luxurious Yonge Parc 2 condos, Build by Pemberton, just over two years old, bright and spacious one bedroom with den (den large enough to be a second bedroom and being a separate room), 635 Square feet of interior space plus 180 Square feet of terrace space with unobstructed, sunny western views. Kitchen offers stainless steel appliances, Quartz countertops, under mount lighting, and glass tile backsplash, laminate flooring throughout, 9 ft smooth ceilings throughout and walk in closet in bedroom, floor to ceiling windows, outdoor faucet in terrace, underground parking and locker. Building offers 24 concierge, visitor parking, gym, party room, outdoor patio and BBQ area, pet wash station, guest suite and onsite management. Quick walk to Langstaff GO station, walking distance to Yonge Street, Park, Community centre, school, shopping, entertainment, groceries, quick drive to Highways 7/407/404/400. (id:27476)

Property Highlights

MLS® Number
N12353030
Type
Single Family
Community Name
Langstaff
Maintenance Fee
536.05
Ownership Type
Condominium/Strata
Parking Space Total
1

Building

Building Type
Apartment
Square Footage
600 - 699 sqft
Bathrooms Total
1
Bedrooms Above Ground
1
Bedrooms Total
2
Amenities
Security/Concierge, Party Room, Visitor Parking, Exercise Centre, Storage - Locker Hospital, Park, Place of Worship, Public Transit
Exterior Finish
Concrete
Fireplace Present
No
Basement Type
None
Basement Features
Building Heating Type
Forced air
Heating Fuel
Natural gas
Building Cooling Type
Central air conditioning

Location

Street Spotlight - For sale