Lot 0-c Briar Hill Boulevard, Richmond Hill, Ontario L4E 4S3

Listed for:
$585,000
0 beds
0 baths
Listed 34 days ago
Lot 0-c Briar Hill Boulevard, Richmond Hill, Ontario L4E 4S3

View all 5 photos

Learn more about this property
Listing provided by:
RIGHT AT HOME REALTY
MLS® number:
N12466022
Agent:
Eoin Kavanagh
*Indicates required field
Name is required
Email is required
Please enter a valid phone number (e.g., 416-111-1111).

About

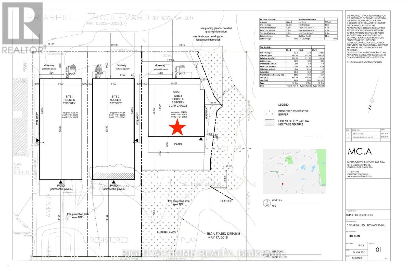
Bayview Ave. & Bloomington Rd. Ravine Building Lot for Sale - Lake Wilcox, Richmond Hill. Rare opportunity to build your custom home on a premium ravine lot in the prestigious Lake Wilcox community. !!! IRREGULAR SHAPED LOT !!! Spans up to 59 feet in one section. This fully serviced property is surrounded by luxury homes and backs onto mature trees and a natural ravine, offering exceptional privacy and a peaceful setting. All preliminary studies and municipal approvals have been completed, allowing for a streamlined building process with the potential to construct up to a 3,300 sq.ft ++ residence. VTB available!!! Perfectly located just steps from Lake Wilcox, scenic trails, and parks, this lot combines nature and convenience. Enjoy easy access to Highway 404, the GO Train, and nearby top-rated schools, shopping, and dining. An ideal opportunity for builders, investors, or end users to create a dream home in one of Richmond Hill's most desirable neighbourhoods. (id:27476)

Property Highlights

MLS® Number
N12466022
Type
Vacant Land
Community Name
Oak Ridges Lake Wilcox
Land Size
40.35 x 86.72 FT ; Irregular shape 59 feet one section|under 1/2 acre

Building

Fireplace Present
No
Basement Type
Basement Features
Building Heating Type
Heating Fuel
Building Cooling Type

Location