Lot C - 0 Briarhill Boulevard, Richmond Hill, Ontario L4E 4S3

Listed for:
$585,000
0 beds
0 baths
Listed 15 days ago
Lot C - 0 Briarhill Boulevard, Richmond Hill, Ontario L4E 4S3

View all 5 photos

About

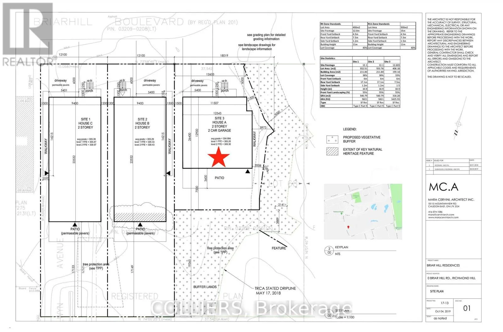
Bayview Ave & Bloomington Rd Rare opportunity to acquire a build-ready ravine lot in a mature, fully built-out Richmond Hill neighbourhood. Located at 0-C Briarhill Blvd, this premium parcel offers privacy, natural views, and exceptional certainty. This is a true turnkey opportunity ideal for builders or end users seeking a custom home site in a prime Richmond Hill location. (id:27476)

Property Highlights

MLS® Number
N12743550
Type
Vacant Land
Community Name
Oak Ridges Lake Wilcox
Land Size
40.35 x 86.72 FT

Building

Square Footage
1713 sqft
Fireplace Present
No
Basement Type
Basement Features
Building Heating Type
Heating Fuel
Building Cooling Type

Utilities

Water
Municipal water

Location

Learn more about this property
Listing provided by:
COLLIERS
MLS® number:
N12743550
Agent:
Daniel Bahrami
*Indicates required field
Name is required
Email is required
Please enter a valid phone number (e.g., 416-111-1111).