Lot 8 - 43 Harold Wilson Lane, Richmond Hill, Ontario L4S 1N5

Listed for:
$1,319,990
3 beds
3 baths
Listed 47 days ago
Row / Townhouse for rent: Lot 8 - 43 Harold Wilson Lane, Richmond Hill, Ontario L4S 1N5

View all 4 photos

About

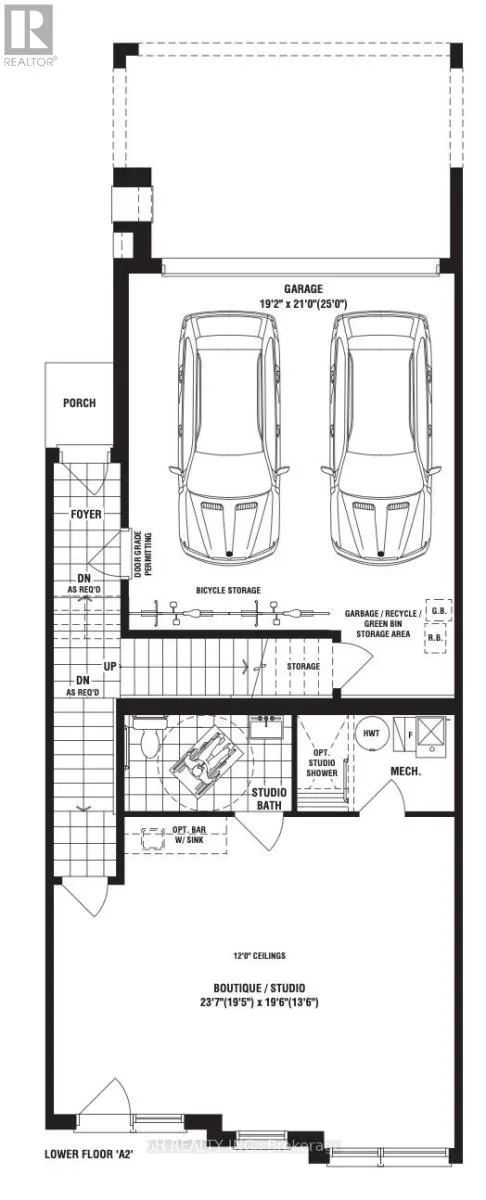
Cross Streets: Leslie & Elgin Mills. ** Directions: Take Leslie to McCague Ave, Make a right on McCague Ave, and a left onto Lunay Drive. Lunay Drive to Harold Wilson Ln. WOW, What an Opportunity! Own a versatile live/work unit at Townsquare by OPUS Homes (2021 & 2024 BILD Builder of the Year). This unique 2-story design offers a roomy, modern living space on the second level and a ground-floor boutique/studio with rare 4-car parking! Take advantage of the exclusive mixed-use zoning: use the lower level for professional services, a creative studio, or simply as additional residential living space-the choice is yours. Built with signature Green Initiatives for peak energy efficiency and loaded with upgrades. First-Time Buyers: Don't forget that the First Time Home Buyer Rebate is applicable to this sale! Maximize your investment in this remarkable, award-winning Richmond Hill community. (id:27476)

Property Highlights

MLS® Number
N12787430
Type
Single Family
Community Name
Rural Richmond Hill
Ownership Type
Freehold
Land Size
25 x 79 FT
Parking Space Total
4

Building

Building Type
Row / Townhouse
Storeys
3.00
Square Footage
2000 - 2500 sqft
Bathrooms Total
3
Bedrooms Above Ground
3
Bedrooms Total
3
Exterior Finish
Brick, Stone
Fireplace Present
No
Basement Type
Full (Unfinished)
Basement Features
Building Heating Type
Forced air
Heating Fuel
Natural gas
Building Cooling Type
Central air conditioning, Air exchanger

Utilities

Water
Municipal water
Utility Sewer
Sanitary sewer

Room Layout

Study
Lower level
7.19 m x 5.95 m
Great room
Main level
3.66 m x 3.2 m
Eating area
Main level
2.19 m x 4.93 m
Kitchen
Main level
3.66 m x 4.88 m
Primary Bedroom
Main level
4.04 m x 4.88 m
Bedroom 2
Main level
3.05 m x 2.74 m
Bedroom 3
Main level
3.43 m x 3.05 m

Location

Learn more about this property
Listing provided by:
6H REALTY INC.
MLS® number:
N12787430
Agent:
Marina Movshovich
*Indicates required field
Name is required
Email is required
Please enter a valid phone number (e.g., 416-111-1111).

Street Spotlight - For sale