1210 E - 8868 Yonge Street, Richmond Hill, Ontario L4C 1Z8

Listed for:
$2,750
2 beds
2 baths
Listed 16 days ago
Apartment for rent: 1210 E - 8868 Yonge Street, Richmond Hill, Ontario L4C 1Z8

View all 20 photos

About

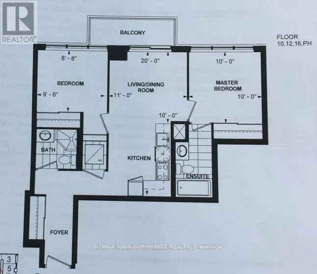
Yonge /Westwood Lane Welcome to Westwood Gardens Condominiums, a modern and highly desirable community in the heart entertaining or relaxing at home. The thoughtful layout provides privacy between bedrooms,and stainless steel appliances, seamlessly connecting to the main living space perfect for condo communities. A fantastic opportunity to own in a vibrant, transit-connected shopping, restaurants, and everyday conveniences. Quick access to major highways including split-bedroom layout with an open-concept living and dining area, ideal for comfortable making it an excellent option for professionals, couples, or small families. Ideally located of premium amenities including a fitness centre, yoga studio, rooftop terrace, party room,offering both comfort and lifestyle convenience in one of Richmond Hill's most sought-after bright and welcoming atmosphere throughout. The contemporary kitchen features modern finishes of Richmond Hill. This bright and upgraded 2-bedroom, 2-bathroom condo offers a functional at Yonge St & Hwy 7, the building is just steps from Langstaff GO Station, public transit,Highway 407 and Highway 404 makes commuting throughout the GTA easy. Residents enjoy a variety neighbourhood with everything you need just moments away.everyday living. Large floor-to-ceiling windows fill the space with natural light (id:27476)

Property Highlights

MLS® Number
N12886490
Type
Single Family
Community Name
South Richvale
Ownership Type
Condominium/Strata
Parking Space Total
1

Building

Building Type
Apartment
Square Footage
600 - 699 sqft
Bathrooms Total
2
Bedrooms Above Ground
2
Bedrooms Total
2
Amenities
Exercise Centre, Party Room, Visitor Parking, Security/Concierge, Storage - Locker
Exterior Finish
Concrete
Fireplace Present
No
Basement Type
None
Basement Features
Building Heating Type
Forced air
Heating Fuel
Natural gas
Building Cooling Type
Central air conditioning

Location

Learn more about this property
Listing provided by:
REMAX YOUR COMMUNITY REALTY
MLS® number:
N12886490
Agent:
Mike Alipour
*Indicates required field
Name is required
Email is required
Please enter a valid phone number (e.g., 416-111-1111).

Street Spotlight - For rent