Lot 123 Big Willow Crescent, Richmond Hill, Ontario L4E 3R4

Listed for:
$2,450,000
6 beds
6 baths
Listed 8 days ago
House for rent: Lot 123 Big Willow Crescent, Richmond Hill, Ontario L4E 3R4

View all 5 photos

About

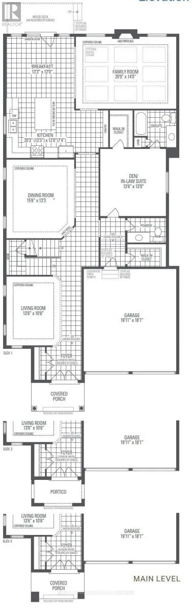
Leslie & 19th Brand-new luxury detached residence in one of Richmond Hill's most sought-after and fast-growing communities. Built by renowned Starlane Homes, this exceptional Legacy 10 Elevation 2 model offers approximately 4,389 sq. ft. above grade on a premium 42' east-facing ravine lot with a walk-out basement, providing privacy, natural views, and abundant daylight.This spacious home features 6 bedrooms and 5.5 bathrooms, with each bedroom offering either a private ensuite or semi-ensuite. Enjoy 10' ceilings on the main floor and 9' ceilings on the upper level, enhancing the open and airy feel throughout. The thoughtfully designed main level includes a DEN / in-law suite with its own ensuite, ideal for multigenerational living, guests, or a private home office.Over $100,000 in upgrades have been invested, including a premium kitchen package featuring a 36-inch range, built-in oven, and built-in microwave, along with quality finishes throughout.The walk-out basement backs onto a beautiful ravine setting, offering exceptional privacy and future potential for additional living space. Conveniently located just minutes to Costco, Hwy 404, shopping, parks, and Richmond Green Secondary School, this home delivers luxury, space, and an unbeatable location. (id:27476)

Property Highlights

MLS® Number
N12985886
Type
Single Family
Community Name
Rural Richmond Hill
Ownership Type
Freehold
Land Size
42 x 114.8 FT
Parking Space Total
4

Building

Building Type
House
Storeys
2.00
Square Footage
3500 - 5000 sqft
Bathrooms Total
6
Bedrooms Above Ground
6
Bedrooms Total
6
Exterior Finish
Brick, Stone
Fireplace Present
Yes
Basement Type
N/A (Unfinished)
Basement Features
Building Heating Type
Forced air
Heating Fuel
Natural gas
Building Cooling Type
None

Utilities

Water
Municipal water
Utility Sewer
Sanitary sewer

Location

Learn more about this property
Listing provided by:
FIRST CLASS REALTY INC.
MLS® number:
N12985886
Agent:
Sharon Zhu
*Indicates required field
Name is required
Email is required
Please enter a valid phone number (e.g., 416-111-1111).