24 Briar Hill Road, Rideau Lakes, Ontario K0E 1N0

Listed for:
$399,000
2 beds
1 baths
Listed 76 days ago
House for rent: 24 Briar Hill Road, Rideau Lakes, Ontario K0E 1N0

View all 20 photos

About

Cross Streets: Hwy 15 and Briar hill Road. ** Directions: From Hwy 15, turn onto Briar Hill Road. Property will be on the left. Discover the opportunity to put your personal touch on this 2 bedroom, 1 bathroom home, started in 2022 and ready for its new owners vision. Much of the hard work has already been completed, with only finishing touches left to transform it into your dream property. Built on a Legalett 3200E GeoSlab foundation, the home features electric in-slab radiant floor heating, keeping the entire house evenly heated from the ground up. Set on a property surrounded by mature trees, the home offers both privacy and natural beauty. Adding to its unique appeal, the property also includes the historic Morton schoolhouse, now upgraded with 200-amp service, it's a versatile space with endless possibilities as a workshop, studio, guesthouse, or a remarkable restoration project. This home is perfect for anyone looking for a unique property with room to add their personal touch. Don't miss this rare chance to create a home that reflects your style, all while enjoying the benefits of modern construction paired with a piece of local history. (id:27476)

Property Highlights

MLS® Number
X12833348
Type
Single Family
Community Name
817 - Rideau Lakes (South Crosby) Twp
Ownership Type
Freehold
Land Size
280.6 x 199.1 FT|1/2 - 1.99 acres
Parking Space Total
10

Building

Building Type
House
Storeys
1.00
Square Footage
700 - 1100 sqft
Bathrooms Total
1
Bedrooms Above Ground
2
Bedrooms Total
2
Fireplace Present
No
Basement Type
None
Basement Features
Building Heating Type
Other
Heating Fuel
Building Cooling Type
None

Utilities

Utility Sewer
Septic System

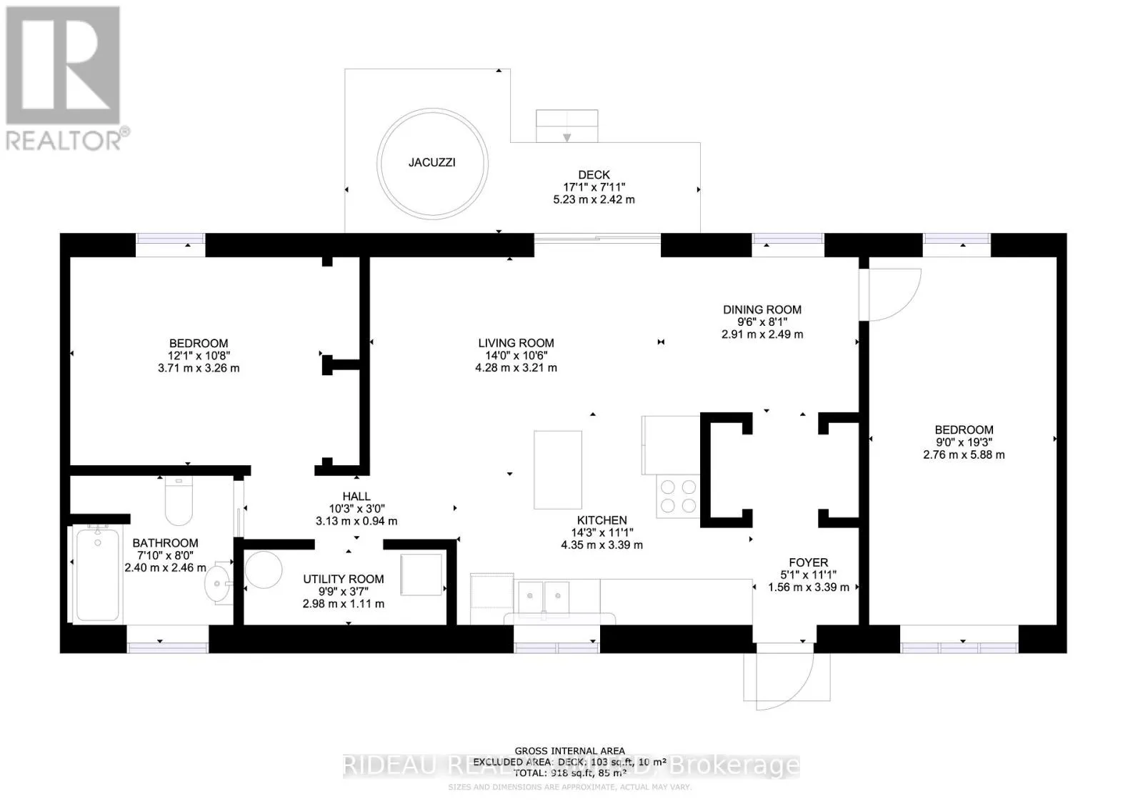
Room Layout

Kitchen
Main level
4.35 m x 3.39 m
Living room
Main level
4.28 m x 3.21 m
Dining room
Main level
2.91 m x 2.49 m
Bedroom
Main level
2.76 m x 5.88 m
Primary Bedroom
Main level
3.71 m x 3.26 m
Bathroom
Main level
2.4 m x 2.26 m
Utility room
Main level
2.98 m x 1.11 m

Location

Learn more about this property
Listing provided by:
RIDEAU REALTY LIMITED
MLS® number:
X12833348
Agent:
Neve Wells
*Indicates required field
Name is required
Email is required
Please enter a valid phone number (e.g., 416-111-1111).